Dvoiposoban stan, Niš - Centar | Prodaja · 65m² · 155.300€
, Centar, Medijana, Niš, Srbija
155.300€
2 389 €/m²
Stan u izgradnji, 65m² - 155.300€ rok avgust 2026
Tip
Stan
Površina
65 m²
Struktura
2.5
Grejanje
Etažno
Detalji
- Tip
- Stan
- Struktura
- 2.5
- Cena
- 155.300€
- Površina
- 65 m² (2 389 €/m²)
- Sprat
- 5
- Ukup. spratova
- 5
- Grejanje
- Etažno
- Terasa
- Da
- Lift
- Da
- Nameštenost
- Prazan
- Ažuriran
- 30.04.2026
- ID
- 1495289
Opis
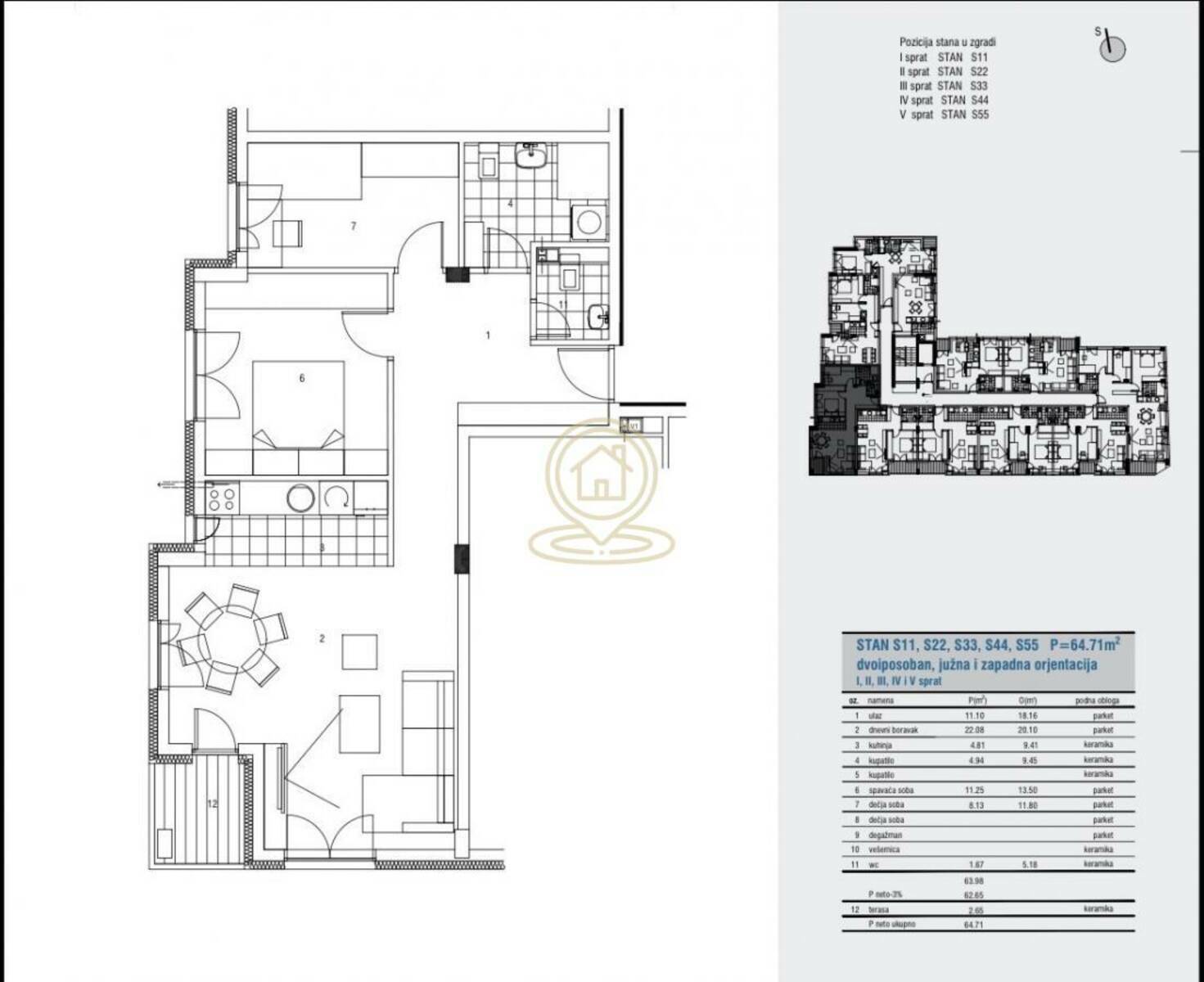
U ponudi je funkcionalan i savremeno projektovan stan u izgradnji, površine 65m², smešten na petom spratu zgrade od ukupno pet spratova. Završetak radova planiran je za avgust ove godine, što ovu nekretninu čini odličnom investicijom kako za život, tako i za izdavanje.
Stan se sastoji od prostrane dnevne sobe sa kuhinjom i trpezarijom, dve spavaće sobe, kupatila, dodatnog toaleta i terase koja pruža prijatan prostor za odmor.
Objekat se gradi po savremenim standardima, uz kvalitetne materijale i dobru organizaciju prostora koja obezbeđuje maksimalnu iskorišćenost svakog kvadrata.
Postoji mogućnost kupovine putem stambenog kredita.
Lokacija je izuzetno praktična i dobro povezana sa ostatkom grada. U neposrednoj blizini nalaze se prodavnice, škole, vrtići, kao i linije gradskog prevoza koje omogućavaju brzu komunikaciju sa centrom. Okruženje je mirno i pogodno za porodičan život, ali i dovoljno urbano za svakodnevne potrebe.
Za sve dodatne informacije i zakazivanje obilaska, slobodno se javite.
Agencijska provizija u skladu sa opštim uslovima poslovanja.
Kontakt info
- Agencija
-
Kompas Nekretnine
- Reg. posrednika br.
- 1596
- Kontakt osoba
- Nikola Milovanović
- Telefon 1
- 06969... Prikaži broj
- Adresa
- Kumodraška 144
- Voždovac
- Beograd , Srbija
Slične nekretnine
Na prodaju – Novogradnja u centru Niša, 1.5–4.0 stanovi
- 147.300€ 62 m2
Na prodaju trosoban stan u samom centru Niša
- 147.000€ 70 m2
Na prodaju trosoban stan kod Caira
- 148.000€ 70 m2
Crveni pevac, Odličan 3.5 stan na top lokaciji!
- 148.500€ 72 m2
Na prodaju dvoiposoban stan – 59 m², Obilićev venac, Niš
- 147.670€ 59 m2
Na prodaju trosoban stan na Bulevaru
- 146.000€ 70 m2
Trosoban stan 82m2, Crveni pevac
- 148.400€ 82 m2
Prodaje se stan na Bulevaru Nemanjića
- 144.000€ 68 m2
Na prodaju trosoban stan na Bulevaru Nemanjica
- 150.000€ 70 m2