Trosoban stan, Niš - Centar | Prodaja · 88m² · 201.700€
, Centar, Medijana, Niš, Srbija
201.700€
2 292 €/m²
Stan 88m² centar, blizina Grčke ambasade, 201700€
Tip
Stan
Površina
88 m²
Struktura
3.0
Grejanje
Etažno
Detalji
- Tip
- Stan
- Struktura
- 3.0
- Cena
- 201.700€
- Površina
- 88 m² (2 292 €/m²)
- Sprat
- 3
- Ukup. spratova
- 5
- Grejanje
- Etažno
- Terasa
- Da
- Lift
- Da
- Nameštenost
- Prazan
- Ažuriran
- 29.04.2026
- ID
- 1495187
Opis
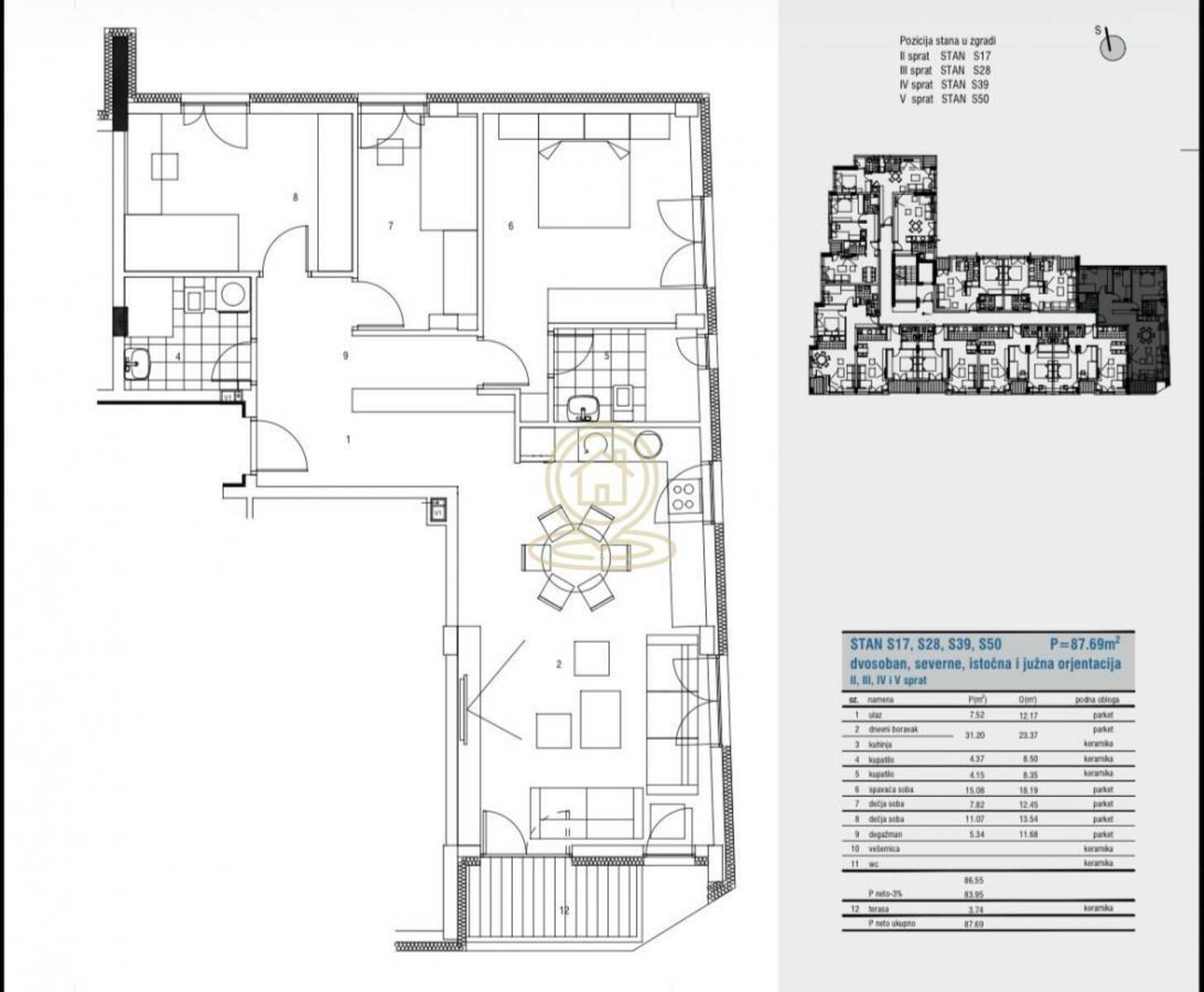
U ponudi su dva identična stana u izgradnji, površine po 88m², koja se nalaze na drugom i trećem spratu kvalitetne novogradnje.
Stan se sastoji od prostrane dnevne sobe sa kuhinjom i trpezarijom, tri spavaće sobe (od kojih glavna spavaća soba poseduje sopstveno kupatilo), dodatnog zajedničkog kupatila, komfornog hodnika i terase.
Svaki stan je opremljen inverter klimom, dok je grejanje rešeno putem električnog kotla.
Odličan raspored prostorija pruža maksimalnu funkcionalnost i udobnost za porodičan život.
Lokacija je izuzetna, u neposrednoj blizini Grčke ambasade, u samom centru grada, sa svim neophodnim sadržajima na dohvat ruke.
Završetak gradnje planiran je za avgust ove godine.
Cena: 201.700€
Za više informacija i rezervaciju, kontaktirajte nas.
Agencijska provizija u skladu sa opštim uslovima poslovanja.
Kontakt info
- Agencija
-
Kompas Nekretnine
- Reg. posrednika br.
- 1596
- Kontakt osoba
- Nikola Milovanović
- Telefon 1
- 06969... Prikaži broj
- Adresa
- Kumodraška 144
- Voždovac
- Beograd , Srbija
Slične nekretnine
3.0 Bulevar Nemanjića
- 189.600€ 92 m2
3.0. Centar, Trg Kralja Aleksandra
- 190.000€ 98 m2
Lux novogradnja, 3.0, Centar, Penthaus
- 192.900€ 80 m2
Novogradnja, Centar
- 190.100€ 73 m2
Ekskluzivna novogradnja u centru 66.72m2
- 190.820€ 66 m2
Ekskluzivna novogradnja u centru 66.72m2
- 190.830€ 66 m2
Ekskluzivna novogradnja u centru 66.72m2
- 190.830€ 66 m2
Ekskluzivna novogradnja u centru 67,48m2
- 189.620€ 67 m2
Dva stana u kući u Duvaništu
- 191.000€ 137 m2