Trosoban stan, Beograd - Batajnica | Prodaja · 69m² · 144.900€
Jovana Brankovića , Batajnica, Zemun, Beograd, Srbija
144.900€
2 100 €/m²
Batajnica centar, trosoban stan, lux ID#1631
Tip
Stan
Površina
69 m²
Struktura
3.0
Grejanje
Etažno
Detalji
- Tip
- Stan
- Struktura
- 3.0
- Cena
- 144.900€
- Površina
- 69 m² (2 100 €/m²)
- Sprat
- 1
- Grejanje
- Etažno
- Terasa
- Da
- Lift
- Da
- Nameštenost
- Prazan
- Uknjižen
- Da
- Ažuriran
- 23.04.2026
- ID
- 1494815
Opis
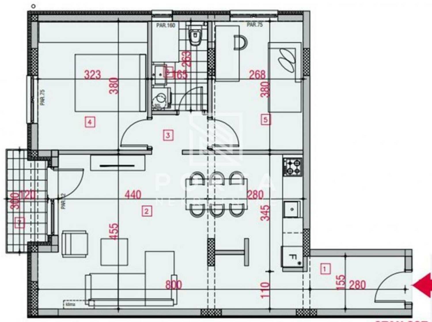
EKSKLUZIVAN STAN U IZGRADNJI- BATAJNICA CENTAR -69 m²
U ponudi je moderan i funkcionalan trosoban stan u manjem, ekskluzivnom objektu u srcu Batajnice, na lokaciji koja pruža mir, privatnost i odličnu povezanost sa gradom.
Stan se nalazi na 1. spratu i prostire se na 69 m², sa idealnim rasporedom:
– open space velliki dnevni boravak sa kuhinjom i trpezarijom
– izlaz na prelepu terasu kroz velika staklena vrata
– dve svetle , komforne spavaće sobe
– kupatilo i funkcionalan hodnik
Odvojena dnevna i spavaća zona garantuju maksimalan komfor i privatnost.
Kvalitet i oprema:
- ALU stolarija (troslojno staklo)
- hrastov parket
- kvalitetna sanitarija
- sigurnosna vrata i interfon
- etažno grejanje na struju
Jedno parking mesto na otvorenom.
Zgrada manjeg formata sa video nadzorom + obezbeđeno parking mesto (rampa na daljinsko otvaranje).
Lokacija: u blizini škole, pijace, Doma zdravlja, prevoza i BG Voza (20–30 min do centra).
Cena: 2.100 €/m²
Useljenje: septembar 2026.
Ova nekretnina nije samo dom – već sigurna i promišljena investicija u budućnost. . Agencijska provizija 2%
Kontakt info
- Agencija
-
PORTA NEKRETNINE
- Reg. posrednika br.
- 935
- Kontakt osoba
- Zorica Tanasković
- Telefon 1
- + 381/6973... Prikaži broj
- Telefon 2
- 011/420... Prikaži broj
- Adresa
- Tadeuša Košćuška 94
- Stari Grad
- Beograd , Srbija
Slične nekretnine
Galenika, Petra Jovovića, 56m2, 2.0, 2/3 uknj
- 135.000€ 56 m2
Zemun, Galenika, Lazara Mamuzića, 57m2 ID#1613
- 142.000€ 57 m2
Zemun, Muhar, , 3.0, 60m2, 130000EUR
- 130.000€ 60 m2
- zemun sf 2664
- 145.000€ 38 m2
Zemun, Altina, Ljiljane Krstić, 3.0, 65m2, 123500EUR
- 123.500€ 65 m2
Zemun, Sutjeska - Pazovački put, 45m2
- 124.878€ 45 m2
Zemun, Marija Bursać, Mozerova, 1.5, 28m2, 122000EUR
- 122.000€ 28 m2
Zemun, Centar, Radoja Dakića, 2.5, 43m2, 119900EUR
- 119.900€ 43 m2
Zemun, Altina - Ugrinovački put 21. deo, 54m2
- 120.000€ 54 m2
STAN ZEMUN GALENIKA 43m2 , T , 120000e
- 120.000€ 43 m2
Zemun, Centar, Avijaticarski trg , 1.0, 50m2, 158000EUR
- 158.000€ 50 m2
Zemun, Gornji grad, Mačvanska , 3.0, 83m2, 160000EUR
- 160.000€ 83 m2