Dvosoban stan, Beograd - Autokomanda | Prodaja · 53m² · 211.167€
Vojvode Stepe , Autokomanda, Voždovac, Beograd, Srbija
211.167€
3 984 €/m²
Voždovac, Autokomanda - Vojvode Stepe, 53m2
Tip
Stan
Površina
53 m²
Struktura
2.0
Grejanje
Centralno
Detalji
- Tip
- Stan
- Struktura
- 2.0
- Cena
- 211.167€
- Površina
- 53 m² (3 984 €/m²)
- Sprat
- 2
- Ukup. spratova
- 8
- Grejanje
- Centralno
- Terasa
- Da
- Lift
- Da
- Garaža
- Da
- Ažuriran
- 16.05.2026
- ID
- 1492594
Opis
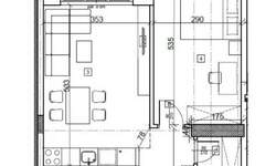
Voždovac, Autokomanda - Vojvode Stepe
2.0, 53m2 (terasa 4m2), 2/8, EG-podno grejanje, lift, telefon, interfon, garaža
Izdvajamo iz ponude stanove različitih struktura (od dvosobnih do petosobnih) u modernom stambeno-poslovnom objektu u blizini Autokomande. Zgrada se nalazi na jednoj od najtraženijih lokacija, nadomak svih sadržaja neophodnih za udoban gradski život.
Tokom gradnje koriste se vrhunski materijali: Šestokomorna stolarija, uvozna keramika premium klase i moderan lift.
Etažno podno grejanje je u svim jedinicama, što daje maksimalnu energetsku efikasnost i niske mesečne režije.
Visok kvalitet radova sa fokusom na dugovečnost i estetski prijatan izgled zajedničkih prostorija.
Ovi stanovi predstavljaju savršen spoj funkcionalnosti i luksuza, idealni kako za porodični dom, tako i kao sigurna investicija za izdavanje.
Postoji mogućnost kupovine parking mesta u podzemnoj garaži po cenama od (sistem klackalice) 40.000 € i (obično GM) 45.000 € + PDV.
Sve cene su iskazane bez uračunatog PDV-a.
Planirani rok završetka radova: jun 2027. godine.
Građevinska dozvola.
Agencijska provizija 2%.
Agent Jovana Simić: 061/62-08-2... Prikaži broj licenca br. 5133)
Kontakt info
- Agencija
-
MOJ KVADRAT D.O.O
- Reg. posrednika br.
- 167
- Kontakt osoba
- Moj Kvadrat
- Telefon 1
- 011/334... Prikaži broj
- Telefon 2
- 011/334... Prikaži broj
- Adresa
- Beogradska br.71
- Palilula
- Beograd , Srbija
Slične nekretnine
Voždovac, Autokomanda - Ustanička, 53m2
- 201.400€ 53 m2
3.0, Vitanovačka, 71, 20m2, novogradnja, eg, terasa, parking
- 200.541€ 71 m2
3.0 Zaplanjska, 71m2, novogradnja, eg, terasa, parking
- 200.540€ 71 m2
Komforan 3.0 stan, Medakovićeva
- 200.000€ 80 m2
Trosoban stan 67 m2, Braće Jerković, Voždovac, Beograd
- 204.000€ 67 m2
PRODAJA, 3.0 STAN NA BANJICI SA GARAZNIM MESTOM
- 205.000€ 65 m2
2, 0/2, 5 lux renoviran uknjizen ID#5687
- 205.000€ 62 m2
Voždovac, Autokomanda - Ustanička, 54m2
- 205.200€ 54 m2
Banjica, Bulevar oslobođenja, 84m2 ID#1510
- 197.000€ 84 m2
Voždovac, Autokomanda, Vojvode Stepe, 2.5, 60m2, 209000 EUR
- 209.000€ 60 m2