Dvosoban stan, Novi Sad - Petrovaradin | Prodaja · 44m² · 110.500€
, Petrovaradin, Petrovaradin, Novi Sad, Srbija
110.500€
2 511 €/m²
Prodaja stanova Novi Sad Petrovaradin - Novogradnja, MOŽE SE UZIMATI NA KREDIT
Tip
Stan
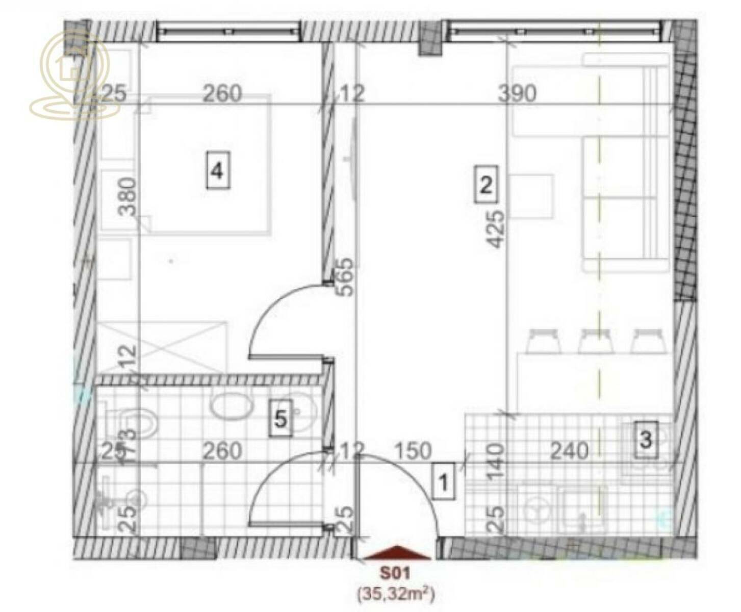
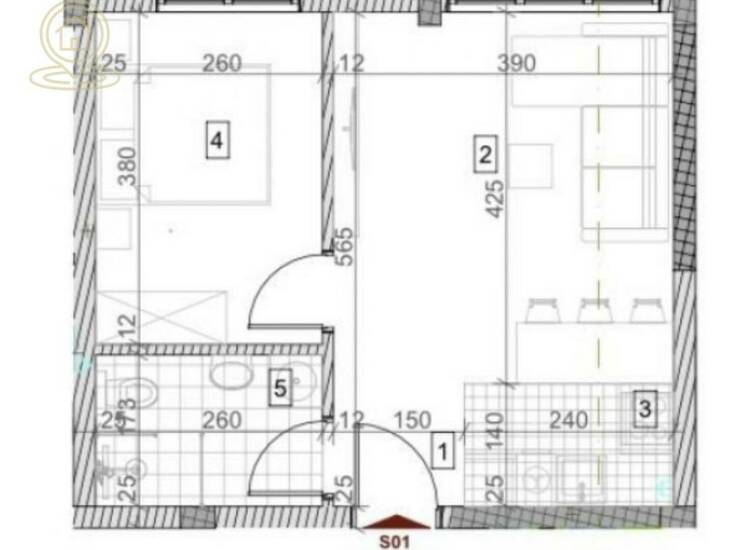
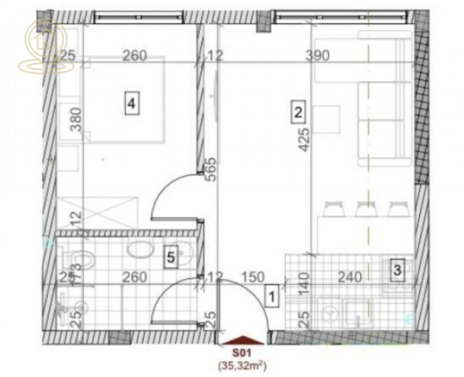
Površina
44 m²
Struktura
2.0
Grejanje
Gas
Detalji
- Tip
- Stan
- Struktura
- 2.0
- Cena
- 110.500€
- Površina
- 44 m² (2 511 €/m²)
- Sprat
- Prizemlje
- Ukup. spratova
- 3
- Grejanje
- Gas
- Terasa
- Da
- Lift
- Da
- Garaža
- Da
- Parking
- Da
- Nameštenost
- Prazan
- Ažuriran
- 02.05.2026
- ID
- 1494325
Opis
Stanovi na prodaju Novi Sad – Novogradnja sa jednosobnim, dvosobnim, trosobnim i četvorosobnim stanovima
Stanovi na prodaju u NOVOM SADU
Zgrada se sastoji od 86 stambenih jedinica i 86 garažnih mesta, sa planiranim završetkom radova 30. aprila 2027. godine. U ponudi su jednosobni, dvosobni, trosobni i četvorosobni stanovi, površine od 29 m² do 101 m², prilagođeni različitim potrebama kupaca.
Ova novogradnja predstavlja vrhunsku ponudu u okviru prodaje stanova u Novom Sadu, kako za krajnje kupce, tako i za investitore.
Osnovne informacije – stanovi na prodaju Novi Sad (novogradnja)
Tip nekretnine: novogradnja – stambeni kompleks
Spratnost: Prizemlje + Prizemlje + 3 sprata + Potkrovlje
Garaže: 86 garažnih mesta
Površina stanova: 29 m² – 101 m²
Struktura: jednosobni, dvosobni, trosobni i četvorosobni stanovi
Planirani završetak: 30.04.2027.
Namena: porodično stanovanje / investicija za izdavanje
Cene izražene sa PDV-om
Agencijska provizija je uključena u cenu
Mogućnost kupovine na kredit
U slučaju kupovine putem kredita, cena po kvadratnom metru je 100€/m² veća
Tehničke karakteristike objekta
Grejanje na gas - individualno po stanu, veoma ekonomično
Šestokomorna PVC stolarija nemačkog profila - DIKIĆ
Sigurnosna vrata čelične konstrukcije, prirodna boja drveta - PORTA NS
Staklene ograde na balkonima
Troslojni Tarket parket 14 mm sa rojal lajsnama (6 cm)
Geberit skriveni vodokotlić
Gorenje bojler 80 L
D
Kontakt info
- Agencija
-
Kompas Nekretnine
- Reg. posrednika br.
- 1596
- Kontakt osoba
- Nikola Milovanović
- Telefon 1
- 06969... Prikaži broj
- Adresa
- Kumodraška 144
- Voždovac
- Beograd , Srbija
Slične nekretnine
Stanovi Petrovaradin sa PDv moze kupovina na kredit
- 110.976€ 43 m2
Nekretnina koja će ostvariti sve vaše snove
- 112.195€ 44 m2
Novi Sad, Petrovaradin, Račkoga, 2.0, 45m2, 112500EUR
- 112.500€ 45 m2
Dvosoban stan PETROVARADIN, 112500€
- 112.500€ 45 m2
Stanovi Miseluk Novogradnja
- 113.513€ 43 m2