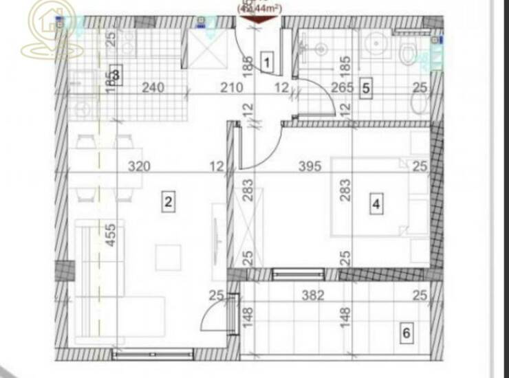
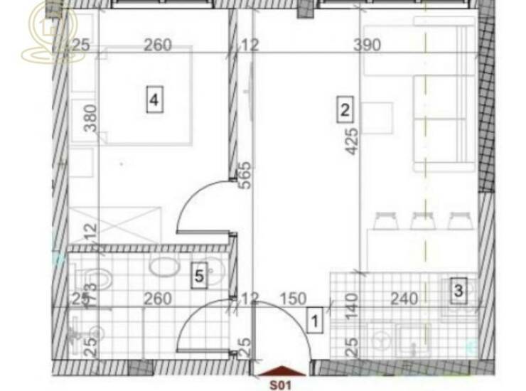
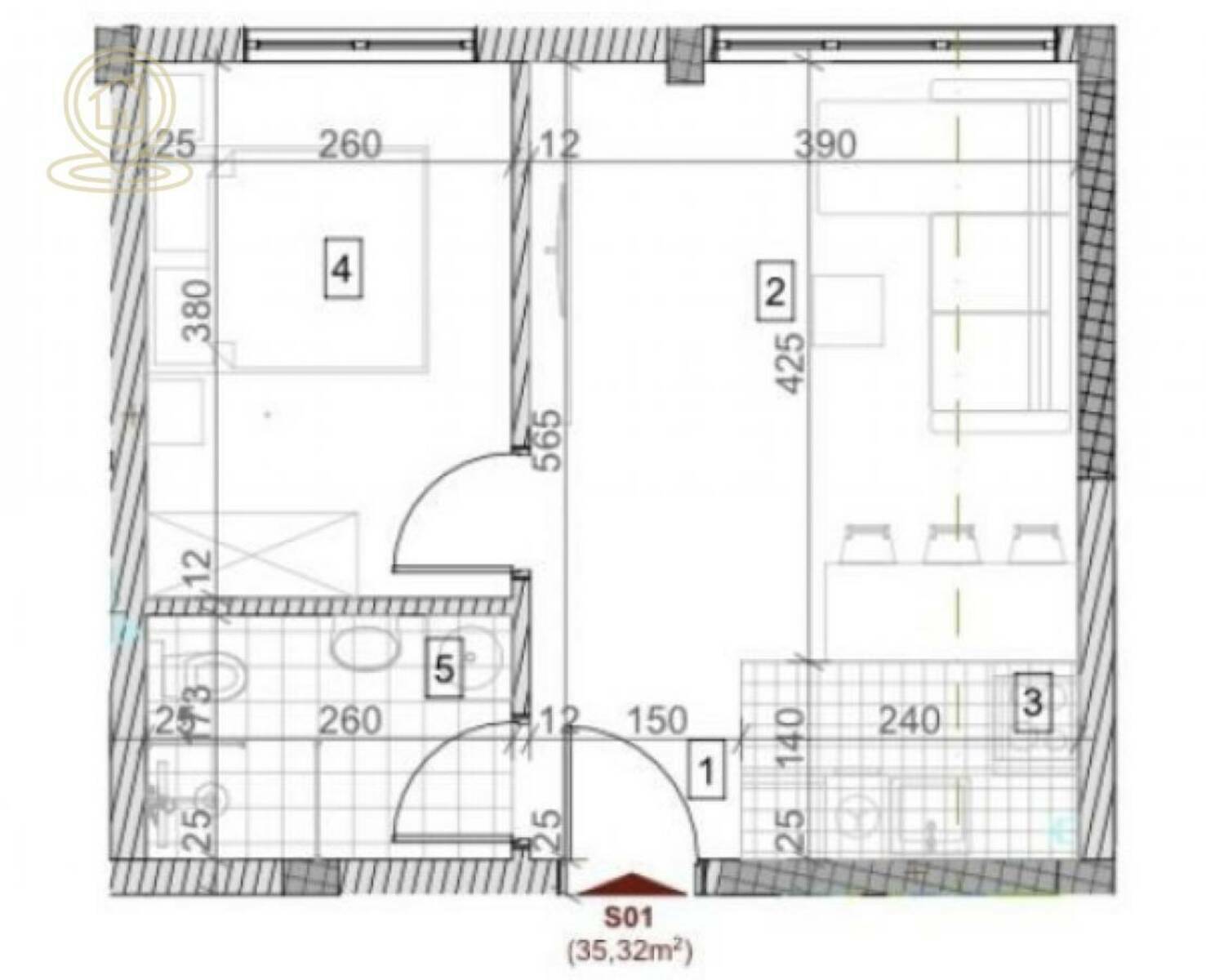
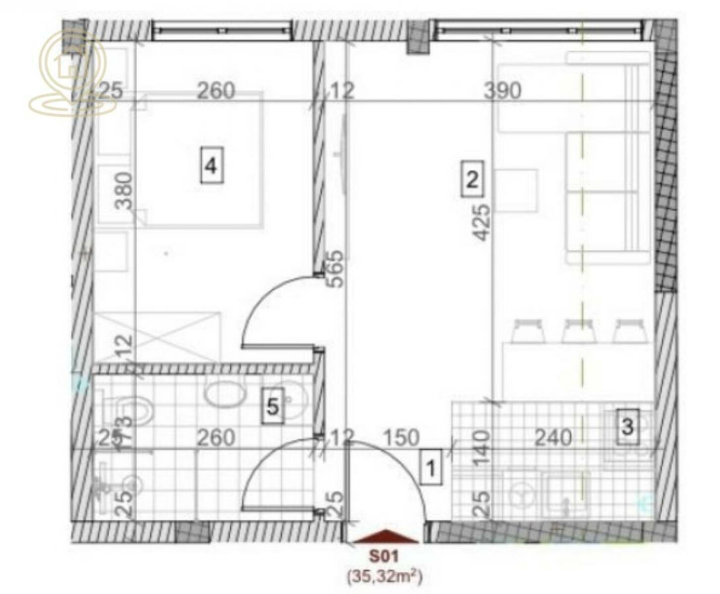
Cetvorosoban stan, Novi Sad - Petrovaradin | Prodaja · 86m² · 189.300€
, Petrovaradin, Petrovaradin, Novi Sad, Srbija
189.300€
2 201 €/m²
Prodaja stanova Novi Sad Petrovaradin – Novogradnja, MOZE NA KREDIT, odlična
Tip
Stan
Površina
86 m²
Struktura
4.0
Grejanje
Gas
Detalji
- Tip
- Stan
- Struktura
- 4.0
- Cena
- 189.300€
- Površina
- 86 m² (2 201 €/m²)
- Sprat
- Potkrovlje
- Ukup. spratova
- 3
- Grejanje
- Gas
- Terasa
- Da
- Lift
- Da
- Garaža
- Da
- Parking
- Da
- Nameštenost
- Prazan
- Ažuriran
- 17.04.2026
- ID
- 1494327
Opis
Prodaja stanova Novi Sad – Novogradnja sa jednosobnim, dvosobnim, trosobnim i četvorosobnim stanovima
U ponudi je prodaja stanova u Novom Sadu u savremenom višeporodičnom stambenom kompleksu (Po+P+3+Pk), na odličnoj lokaciji, idealnoj za porodično stanovanje ili kao investicija za izdavanje.
Objekat se sastoji od 86 stambenih jedinica i 86 garažnih mesta, sa planiranim završetkom radova 30. aprila 2027. godine. U ponudi su jednosobni, dvosobni, trosobni i četvorosobni stanovi, površina od 29 m² do 101 m², prilagođeni različitim potrebama kupaca.
Ova novogradnja predstavlja vrhunsku ponudu u okviru prodaja stanova Novi Sad, kako za krajnje kupce, tako i za investitore.
Osnovne informacije – prodaja stanova Novi Sad (novogradnja)
Tip nekretnine: novogradnja – stambeni kompleks
Spratnost: Po + P + 3 + Pk
Broj stanova: 86 stambenih jedinica
Garaže: 86 garažnih mesta
Površine stanova: 29 m² – 101 m²
Strukture: jednosobni, dvosobni, trosobni i četvorosobni stanovi
Planirani završetak: 30.04.2027.
Namena: porodično stanovanje / investicija za izdavanje
Cene izražene sa PDV-om
Agencijska provizija je uračunata u cenu
Mogućnost kupovine na kredit
U slučaju kupovine putem kredita, cena kvadrata je viša za 100 €/m²
Tehničke karakteristike objekta
Grejanje na gas – individualno po stanu, veoma ekonomično
Šestokomorna PVC stolarija nemačkog profila – DIKIĆ
Sigurnosna vrata čelične konstrukcije, prirodna boja drv
Kontakt info
- Agencija
-
Kompas Nekretnine
- Reg. posrednika br.
- 1596
- Kontakt osoba
- Nikola Milovanović
- Telefon 1
- 06969... Prikaži broj
- Adresa
- Kumodraška 144
- Voždovac
- Beograd , Srbija
Slične nekretnine
Prodaja stanova Novi Sad Petrovaradin –Duplex Novogradnja
- 180.200€ 73 m2
Prodaja stanova Novi Sad Petrovaradin –Duplex Novogradnja
- 183.000€ 83 m2
Sremska Kamenica, Popovica - Nov trosoban stan ID#1000860
- 173.300€ 75 m2
Novi Sad, Petrovaradin, Preradovićeva, 4.0, 89m2, 173550EUR
- 173.550€ 89 m2
Oglas
- 189.400€ 88 m2
Novi Sad, Petrovaradin, Okrugićeva, 4.0, 82m2, 170000EUR
- 170.000€ 82 m2
Sremska Kamenica, Popovica - Nov dvoiposoban stan ID#1001154
- 169.900€ 53 m2