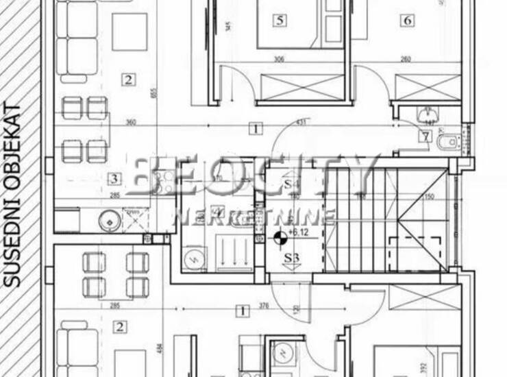
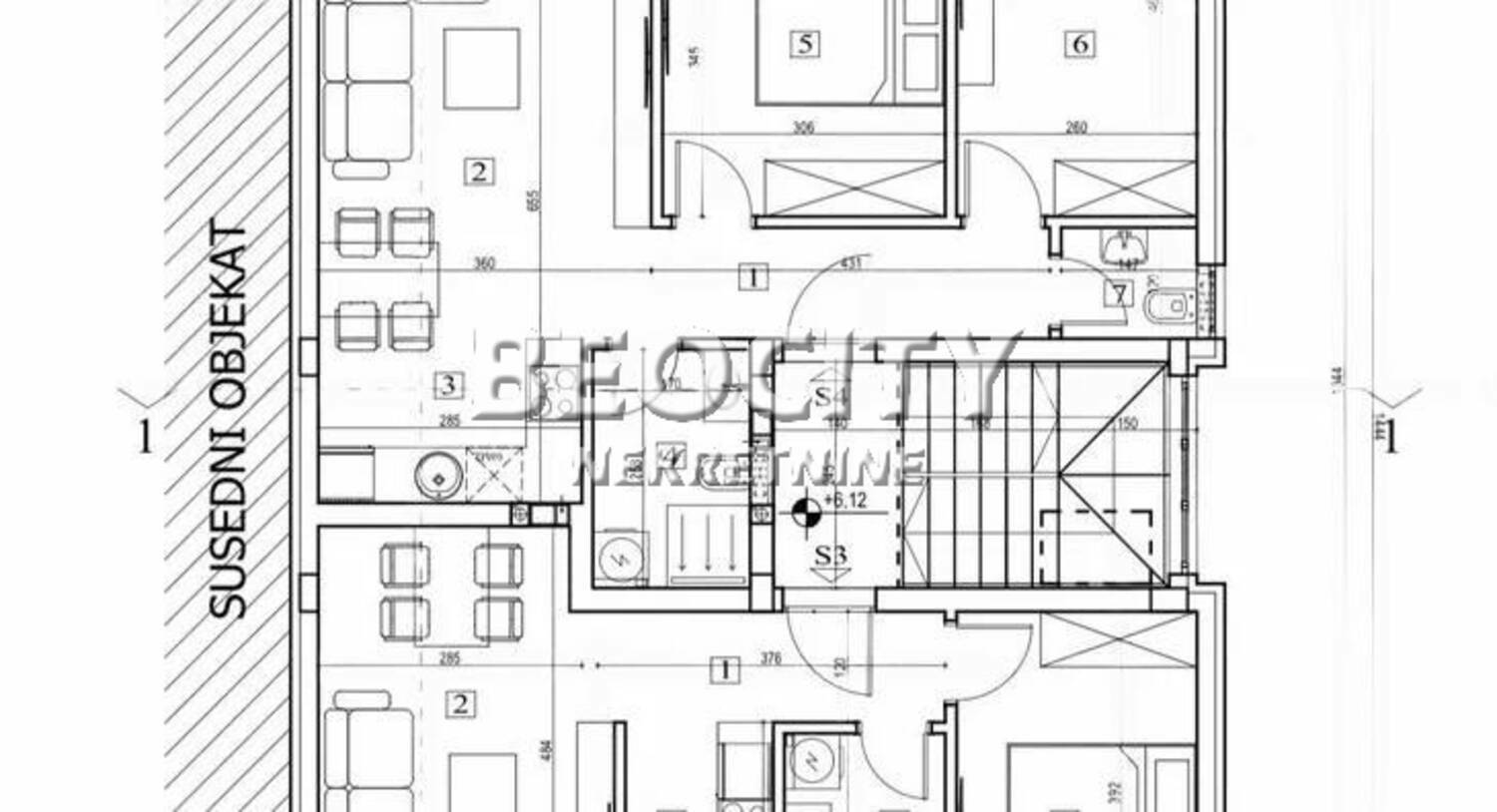
Dvosoban stan, Novi Sad - Adice | Prodaja · 41m² · 88.000€
, Adice, Novi Sad, Srbija
88.000€
2 146 €/m²
Novi Sad, Adice, , 1.5, 41m2, 88000EUR
Tip
Stan
Površina
41 m²
Struktura
2
Grejanje
Centralno
Detalji
- Tip
- Stan
- Struktura
- 2
- Cena
- 88.000€
- Površina
- 41 m² (2 146 €/m²)
- Sprat
- 2
- Ukup. spratova
- 2
- Grejanje
- Centralno
- Terasa
- Da
- Parking
- Da
- Uknjižen
- Da
- Ažuriran
- 14.04.2026
- ID
- 1487174
Opis
Agencijski ID: 129529, II/II, terasa, uknjizen, u izgradnji, parking. Prodaja - ADICE - stan 41m2 dvosoban. Useljenje decembar ove godine. Moderna vila sa 2 ulaza sa po 4 stana. Celi rejon u velikom prosperitetu. Blizina nove osnovne skole, vrtica, novog Doma zdravlja. Blizina autobuske stanice br 6, koja saobraca do centra Novog Sada, sa polascima na 15 min. Blizina Dunava. Cist vazduh i mir! Vlasnistvo 1/1. Objekat trenutno nema kanalizaciju, ali su radovi na istoj u toku. PDV je placen, pa nema povrata na isti.
Odluka za nov stan uvek je dobra odluka. Vise informacija na: www.beocitynekretnine.rs Agencijska provizija 3%. Telefoni: 021/399-0210 060/399-... Prikaži broj . Kontakt van radnog vremena: kancelarija@beocitynekretnine.rs
Kontakt info
- Agencija
-
BEOCITY NEKRETNINE
- Reg. posrednika br.
- 554
- Kontakt osoba
- Beocity Nekretnine
- Telefon 1
- 060/328-... Prikaži broj
- Telefon 2
- 011/328-... Prikaži broj
- Adresa
- Makenzijeva 22
- Beograd , Srbija
Slične nekretnine
Jednoiposoban stan NOVI SAD, 85000€
- 85.000€ 36 m2
Dvosoban stan NOVI SAD, 83000€
- 83.000€ 30 m2
Novi Sad, Adice, , 3.0, 47m2, 81550EUR
- 81.550€ 47 m2
Trosoban stan NOVI SAD, 87450€
- 87.450€ 53 m2
Novi Sad, Adice, , 1.5, 32m2, 80000EUR
- 80.000€ 32 m2
Jednoiposoban stan NOVI SAD, 80000€
- 80.000€ 28 m2
Jednoiposoban stan NOVI SAD, 78000€
- 78.000€ 38 m2
Na prodaju jednoiposoban stan na Adicama, 35m2
- 88.230€ 35 m2