Troiposoban stan, Niš - Filozofski fakultet | Prodaja · 82m² · 206.900€
, Filozofski fakultet, Medijana, Niš, Srbija
206.900€
2 523 €/m²
Na prodaju – stanovi u novogradnji u Centru Niša, kod Filozofskog fakulteta
Tip
Stan
Površina
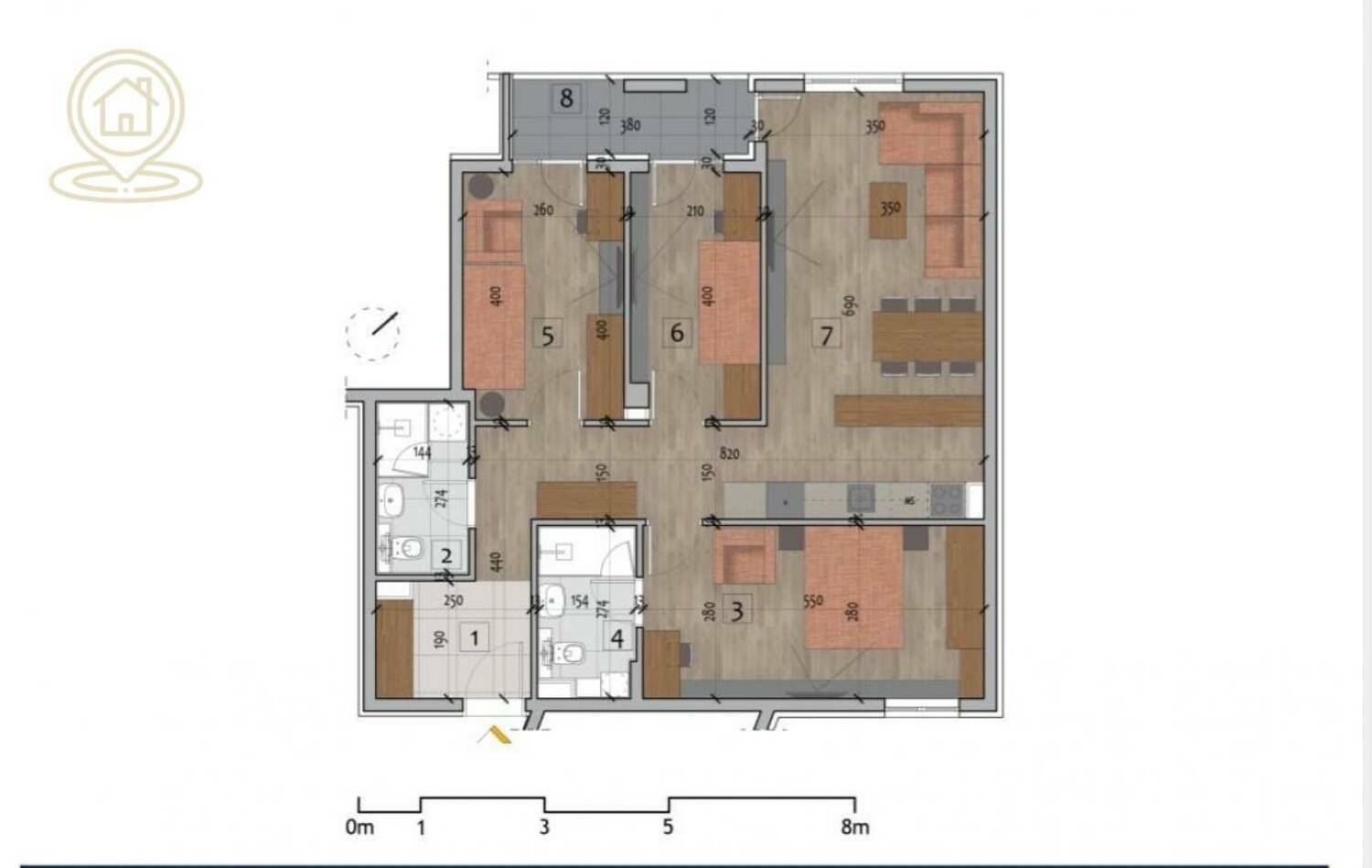
82 m²
Struktura
3.5
Grejanje
Etažno
Detalji
- Tip
- Stan
- Struktura
- 3.5
- Cena
- 206.900€
- Površina
- 82 m² (2 523 €/m²)
- Sprat
- 3
- Ukup. spratova
- 7
- Grejanje
- Etažno
- Terasa
- Da
- Lift
- Da
- Garaža
- Da
- Parking
- Da
- Nameštenost
- Prazan
- Ažuriran
- 04.03.2026
- ID
- 1487470
Opis
U ponudi su stanovi u novogradnji na najatraktivnijoj lokaciji u Centru Niša, u neposrednoj blizini Filozofskog fakulteta. Zgrada je projektovana kao PO+PR+7 i biće opremljena liftom i savremenim tehničkim rešenjima.
Struktura stanova:
Ulazni hodnik
Dnevna soba sa trpezarijom i kuhinjom
Spavaća soba
Kupatilo
Terasa
Kvalitet gradnje i materijali:
Šabački termo blok od 20 cm + dodatna izolacija od 10 cm stiropora
Alubond i demit fasada u kombinaciji sa staklenom fasadom – moderan izgled i dugotrajnost
PVC stolarija Aluplast (Nemačka proizvodnja, vrhunski kvalitet)
Četvorosezonska stakla sa toplotnom i zvučnom izolacijom
Podne obloge: Kronospan Tarkett 14 mm u sobama, granitna keramika u kuhinji, kupatilu i hodniku
Arhitektonski koncept uklopljen u urbano okruženje – elegantan i moderan dizajn
Parking:
Mogućnost kupovine parking mesta po ceni od 20.000 €
Cena i uslovi:
Cena stanova prikazana sa PDV-om
Mogućnost povraćaja PDV-a za kupce prve nekretnine
Rok završetka radova: 2027. godina
✅ Ova novogradnja predstavlja idealnu priliku za porodičan život u samom centru grada, ali i sigurnu investiciju zahvaljujući atraktivnoj lokaciji i vrhunskom kvalitetu gradnje.
Agencijska provizija u skladu sa opštim uslovima poslovanja 1%
Kompas Nekretnine – vaš pouzdan partner u kupovini i prodaji nekretnina
Kontakt info
- Agencija
-
Kompas Nekretnine
- Reg. posrednika br.
- 1596
- Kontakt osoba
- Nikola Milovanović
- Telefon 1
- 06969... Prikaži broj
- Adresa
- Kumodraška 144
- Voždovac
- Beograd , Srbija
Slične nekretnine
Novogradnja, Centar
- 196.300€ 76 m2
Na prodaju duplex u novogradnji na Margeru- 94m²
- 195.000€ 94 m2
Novogradnja ,centar , povracaj pdv
- 197.400€ 94 m2
4,0 stan , centar, 99 m2, V sprat, cg.
- 198.040€ 99 m2
Marger, četvorosoban, 5. sprat, lift, cg
- 196.000€ 100 m2
Novogradnja, Centar
- 201.340€ 78 m2
Novogradnja, Centar
- 201.110€ 78 m2