Prodaja stanova Novi Sad Petrovaradin –Duplex Novogradnja, Po+P+3+Pk, odličn
, Petrovaradin, Novi Sad, Srbija
177.891€
1 761 €/m²
Tip
Stan
Površina
101 m²
Struktura
4.0
Grejanje
Gas
Detalji
- Tip
- Stan
- Struktura
- 4.0
- Cena
- 177.891€
- Površina
- 101 m² (1 761 €/m²)
- Sprat
- Potkrovlje
- Ukup. spratova
- 3
- Grejanje
- Gas
- Terasa
- Da
- Lift
- Da
- Garaža
- Da
- Parking
- Da
- Ažuriran
- 26.11.2025
- ID
- 1460735
Opis
Duplex
Prodaja stanova u Novom Sadu – moderni jednosobni, dvosobni, trosobni i četvorosobni stanovi u novogradnji na odličnoj lokaciji, sa planiranim završetkom radova 30. aprila 2027. godine.
Objekat je višeporodični stambeni kompleks (Po+P+3+Pk) sa ukupno 86 stambenih jedinica i 86 garažnih mesta.
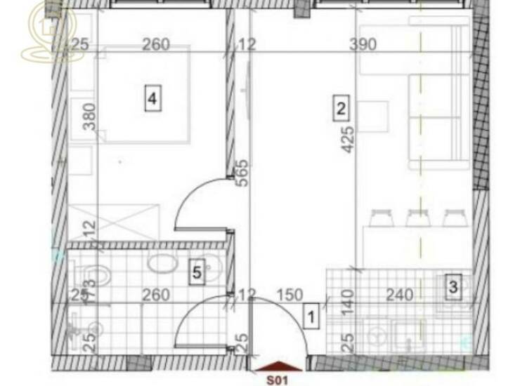
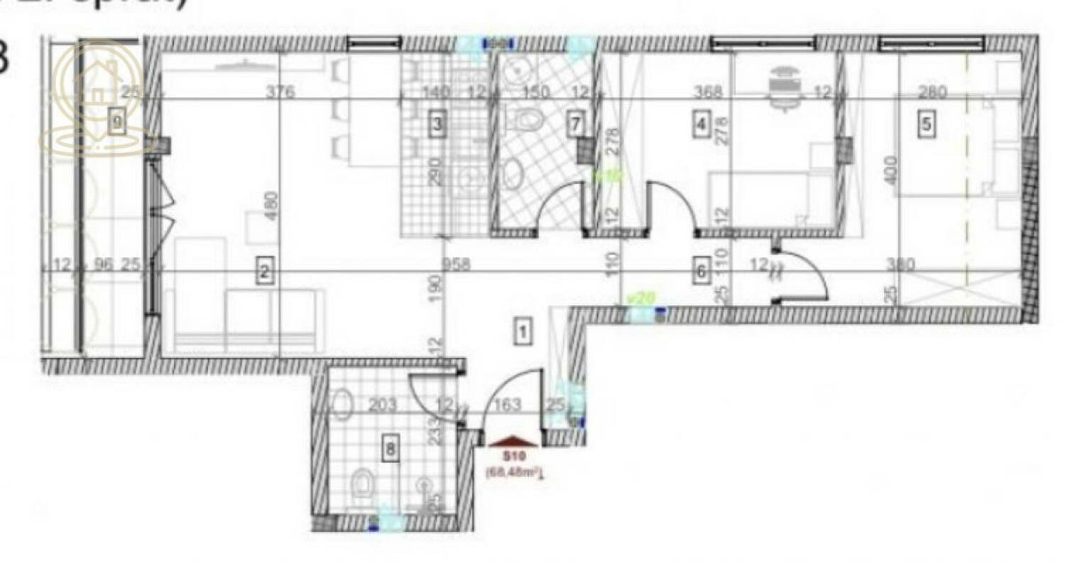
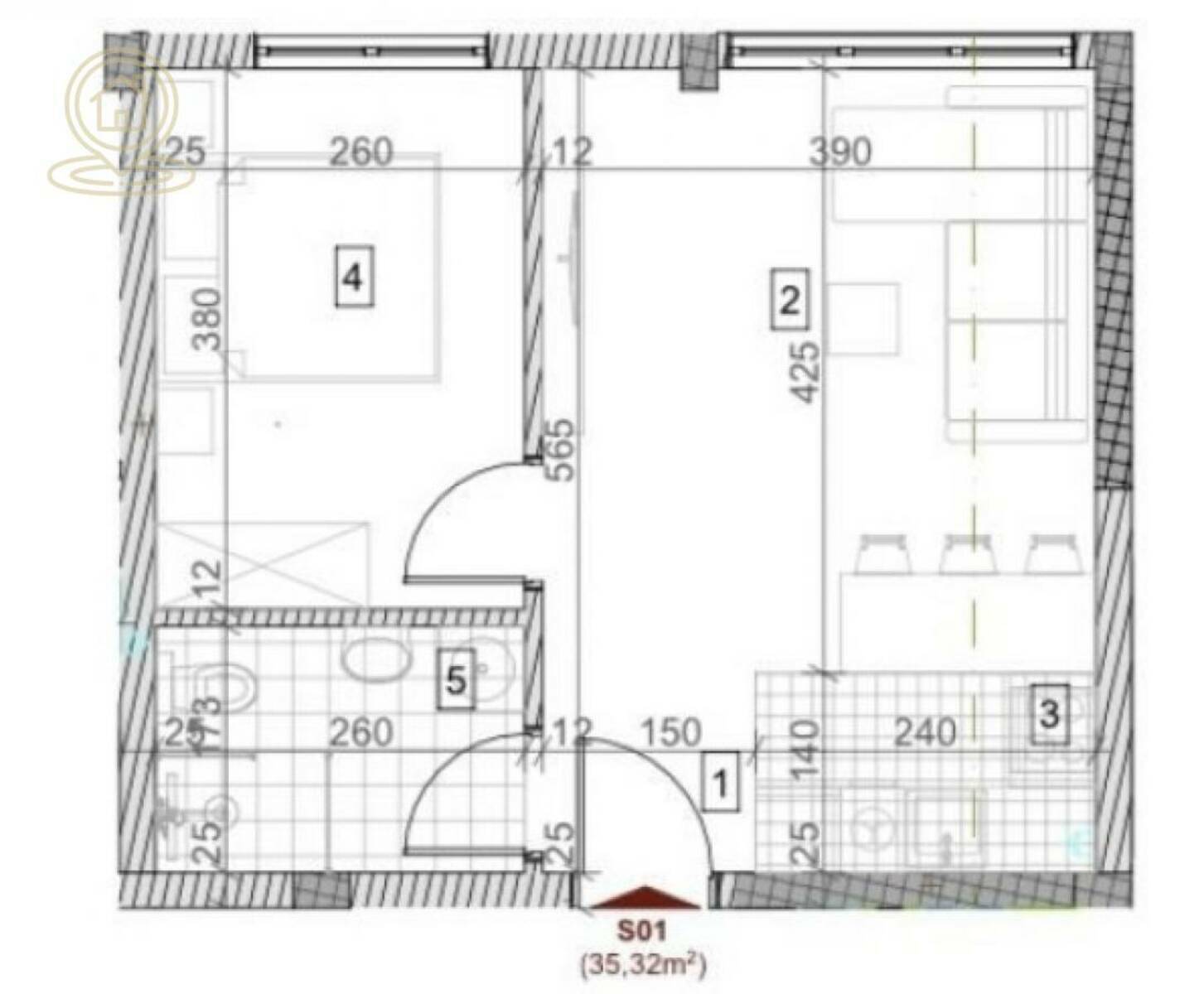
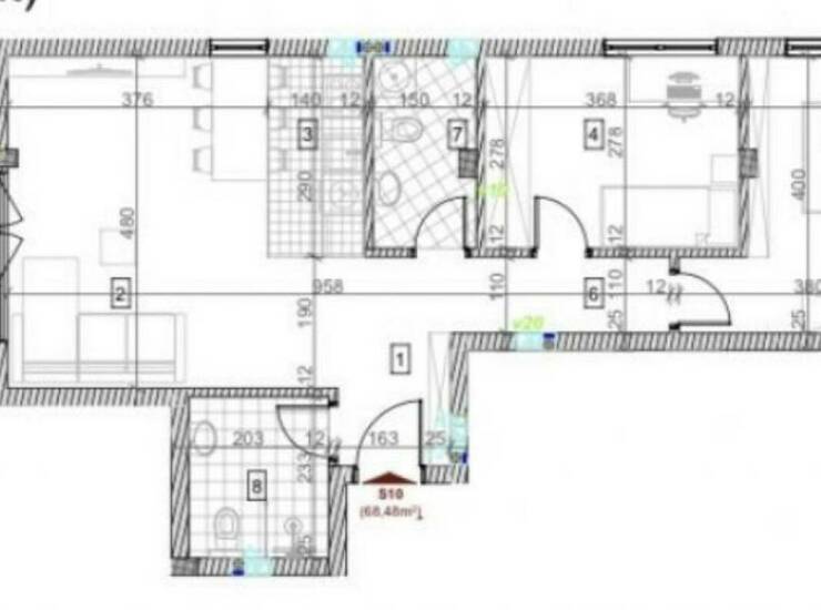
Stanovi površine od 29 m² do 101 m², idealni za porodično stanovanje ili investiciju.
Tehničke karakteristike objekta
Grejanje na gas – veoma ekonomičan i pouzdan sistem, sa mogućnošću individualnog podešavanja za svaki stan
Šestokomorna PVC stolarija nemačkog profila – firma DIKIĆ
Sigurnosna vrata čelične konstrukcije, prirodne boje drveta – PORTA NS
Staklene ograde na balkonima
Tarkett parket troslojni 14 mm, sa kraljevskom lajsnom visine 6 cm
Geberit skriveni vodokotlić, Gorenje bojler 80 L
Demit fasada sa 10 cm termoizolacije
Betonska krovna ploča 20 cm + izolacija od kamene vune 20 cm
Ova novogradnja u Novom Sadu nudi savremeni kvalitet gradnje, energetsku efikasnost i moderan dizajn. Svaki stan ima zasebno grejanje na gas, odličnu zvučnu i toplotnu izolaciju, kao i moderan enterijer.
Odlična lokacija – blizina škola, vrtića, prodavnica i javnog prevoza čini ove stanove idealnim za porodični život ili kao investiciju za izdavanje.
Cena bez PDV-a
proviziju ne placa kupac
vas posrednik u prodaji i izdavanju nekretnina agencija Kompas
Kontakt info
- Agencija
-
Kompas Nekretnine
- Reg. posrednika br.
- 1596
- Kontakt osoba
- Nikola Milovanović
- Telefon 1
- 06969... Prikaži broj
- Adresa
- Kumodraška 144
- Voždovac
- Beograd , Srbija
Slične nekretnine
Prodaja stanova Novi Sad Petrovaradin
- 178.318€ 91 m2
Oglas
- 175.787€ 90 m2
Prodaja stanova Petrovaradin –trosoban stan Novi Sad
- 180.150€ 82 m2
Sremska Kamenica, Popovica - Nov trosoban stan ID#1000860
- 173.300€ 75 m2
Novi Sad, Petrovaradin, Preradovićeva, 4.0, 89m2, 173550EUR
- 173.550€ 89 m2
Na prodaju četvorosoban stan - 78m2- Petrovaradin
- 165.000€ 78 m2
HITNO! Prodaja četvorosobnog stana Alibegovac, Petrovaradin
- 158.200€ 72 m2