Prodaja stanova Novi Sad Petrovaradin
, Petrovaradin, Novi Sad, Srbija
178.318€
1 959 €/m²
Tip
Stan
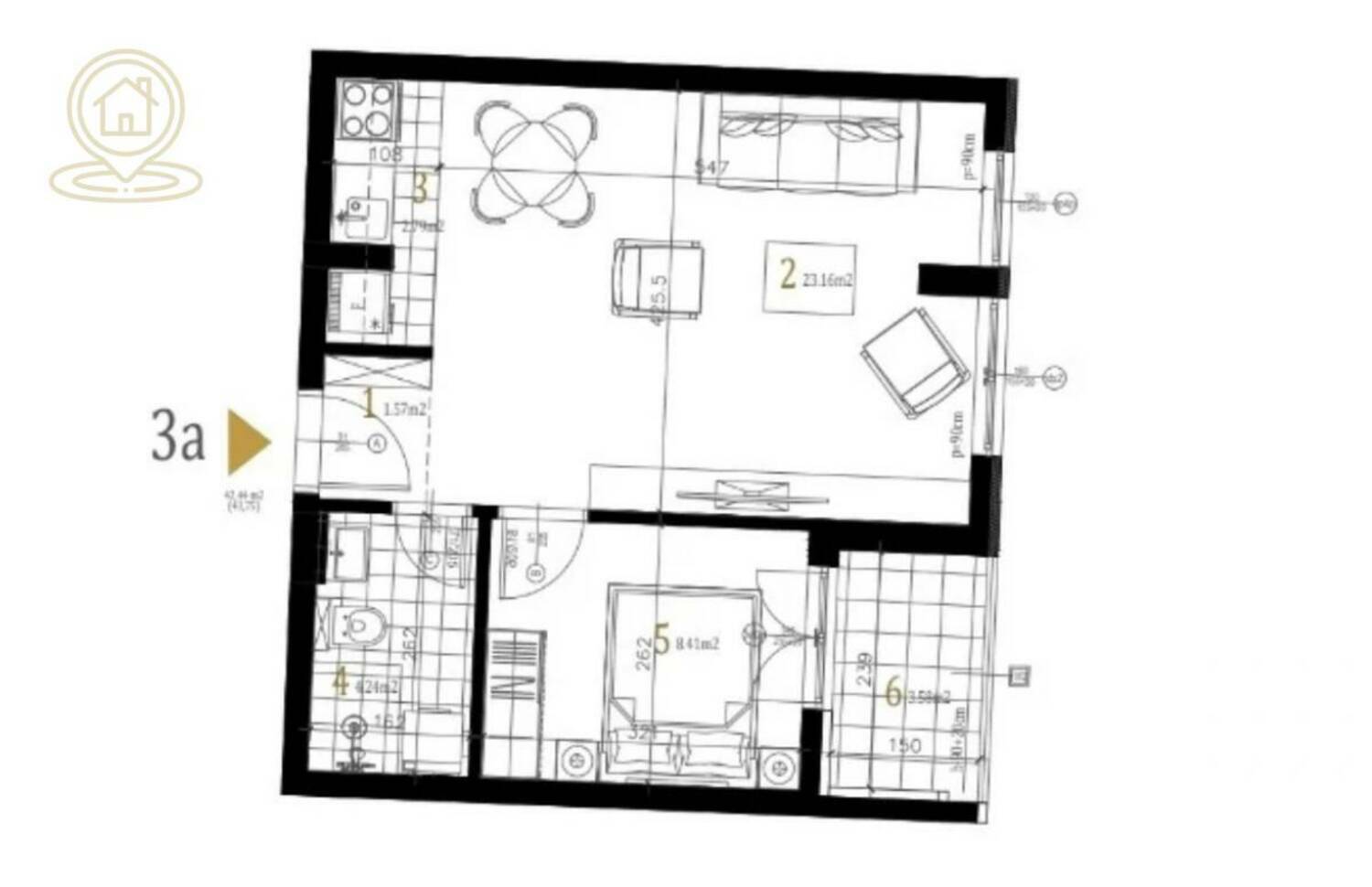
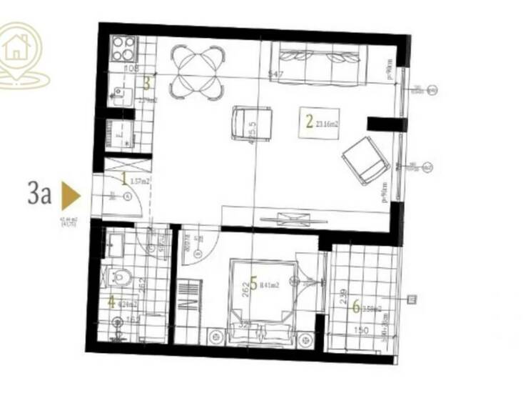
Površina
91 m²
Struktura
3.0
Grejanje
Gas
Detalji
- Tip
- Stan
- Struktura
- 3.0
- Cena
- 178.318€
- Površina
- 91 m² (1 959 €/m²)
- Sprat
- Potkrovlje
- Ukup. spratova
- 3
- Grejanje
- Gas
- Terasa
- Da
- Lift
- Da
- Garaža
- Da
- Parking
- Da
- Ažuriran
- 08.01.2026
- ID
- 1460734
Opis
Prodaja stanova u Novom Sadu – moderni jednosobni, dvosobni, trosobni i četvorosobni stanovi u novogradnji na odličnoj lokaciji, sa planiranim završetkom radova 30. aprila 2027. godine.
Objekat je višeporodični stambeni kompleks (Po+P+3+Pk) sa ukupno 86 stambenih jedinica i 86 garažnih mesta.
Stanovi površine od 29 m2 do 101 m2, idealni za porodično stanovanje ili investiciju.
Skice stana mozete dobiti nakon potpisivanja ugovora jer ove iz oglasa ne odgovaraju ovom stanu,
kod nas kupac ne placa proviziju a cene su izrazene bez pdv
Tehničke karakteristike objekta
Grejanje na gas – veoma ekonomičan i pouzdan sistem, sa mogućnošću individualnog podešavanja za svaki stan
Šestokomorna PVC stolarija nemačkog profila – firma DIKIĆ
Sigurnosna vrata čelične konstrukcije, prirodne boje drveta – PORTA NS
Staklene ograde na balkonima
Tarkett parket troslojni 14 mm, sa kraljevskom lajsnom visine 6 cm
Geberit skriveni vodokotlić, Gorenje bojler 80 L
Demit fasada sa 10 cm termoizolacije
Betonska krovna ploča 20 cm + izolacija od kamene vune 20 cm
Ova novogradnja u Novom Sadu nudi savremeni kvalitet gradnje, energetsku efikasnost i moderan dizajn. Svaki stan ima zasebno grejanje na gas, odličnu zvučnu i toplotnu izolaciju, kao i moderan enterijer.
Odlična lokacija – blizina škola, vrtića, prodavnica i javnog prevoza čini ove stanove idealnim za porodični život ili kao investiciju za izdavanje.
Cena bez PDV-a
proviziju ne pla
Kontakt info
- Agencija
-
Kompas Nekretnine
- Reg. posrednika br.
- 1596
- Kontakt osoba
- Nikola Milovanović
- Telefon 1
- 06969... Prikaži broj
- Adresa
- Kumodraška 144
- Voždovac
- Beograd , Srbija
Slične nekretnine
Prodaja stanova Novi Sad Petrovaradin –Duplex Novogradnja
- 177.891€ 101 m2
Prodaja stanova Petrovaradin –trosoban stan Novi Sad
- 180.150€ 82 m2
Oglas
- 175.787€ 90 m2
Prodaja stanova Novi Sad Petrovaradin –Duplex Novogradnja
- 176.046€ 88 m2
Sremska Kamenica, Popovica - Nov trosoban stan ID#1000860
- 173.300€ 75 m2
Novi Sad, Petrovaradin, Preradovićeva, 4.0, 89m2, 173550EUR
- 173.550€ 89 m2
Novi Sad, Petrovaradin, Preradovićeva, 4.0, 89m2, 173550EUR
- 173.550€ 89 m2
Na prodaju četvorosoban stan - 78m2- Petrovaradin
- 169.950€ 78 m2
HITNO! Prodaja četvorosobnog stana Alibegovac, Petrovaradin
- 162.946€ 72 m2