Prodaja trosobnih stanova Telep – kvalitetna gradnja, 63–77m²
, Telep, Novi Sad, Srbija
149.896€
2 379 €/m²
Tip
Stan
Površina
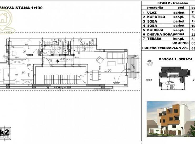
63 m²
Struktura
3.0
Grejanje
Gas
Detalji
- Tip
- Stan
- Struktura
- 3.0
- Cena
- 149.896€
- Površina
- 63 m² (2 379 €/m²)
- Sprat
- 1
- Ukup. spratova
- 2
- Grejanje
- Gas
- Terasa
- Da
- Garaža
- Da
- Parking
- Da
- Nameštenost
- Prazan
- Ažuriran
- 28.01.2026
- ID
- 1477213
Opis
Prodaja trosobnih stanova Telep – kvalitetna gradnja, 63–77m², prizemlje, sprat i potkrovlje
Na prodaju trosobni stanovi na Telepu, površine od 63 do 77 kvadrata, u modernoj zgradi vrhunske gradnje. Stanovi su dostupni u prizemlju, na prvom spratu i u potkrovlju, sa pažljivo osmišljenim rasporedom prostorija i odličnom izolacijom.
✅ Lokacija: miran deo Telepa, u blizini škole, vrtića, prodavnica i autobuskih linija
✅ Struktura: trosobni stanovi od 63m² do 77m²
✅ Spratnost: prizemlje, prvi sprat i potkrovlje
✅ Gradnja: odličan kvalitet, savremeni materijali, energetski efikasni prozori i fasada
✅ Uskoro useljivo
Ovi stanovi na Telepu idealni su za porodično stanovanje ili investiciju.
Agencijska provizija u skladu sa opštim uslovima poslovanja.
Kompas nekretnine – Vaš pouzdan partner u kupovini i prodaji nekretnina.
Kontakt info
- Agencija
-
Kompas Nekretnine
- Reg. posrednika br.
- 1596
- Kontakt osoba
- Nikola Milovanović
- Telefon 1
- 06969... Prikaži broj
- Adresa
- Kumodraška 144
- Voždovac
- Beograd , Srbija
Slične nekretnine
Novi Sad, Telep, Heroja Pinkija, 3.0, 60m2, 150000EUR
- 150.000€ 60 m2
Trosoban stan NOVI SAD, 150000€
- 150.000€ 74 m2
Novi Sad, Telep - Jednoiposoban stan, namešten ID#1001021
- 149.350€ 50 m2
Novi Sad, Telep, , 3.0, 59m2, 150450EUR
- 150.450€ 59 m2
Oglas
- 148.886€ 59 m2
Novi Sad, Telep, Somborska, 3.0, 63m2, 151200EUR
- 151.200€ 63 m2
Trosoban stan NOVI SAD, 148290€
- 148.290€ 67 m2
Dvoiposoban stan NOVI SAD, 147500€
- 147.500€ 59 m2