Prodaja trosobnih stanova Telep – kvalitetna gradnja, 63–77m²
, Telep, Novi Sad, Srbija
136.702€
2 169 €/m²
Tip
Stan
Površina
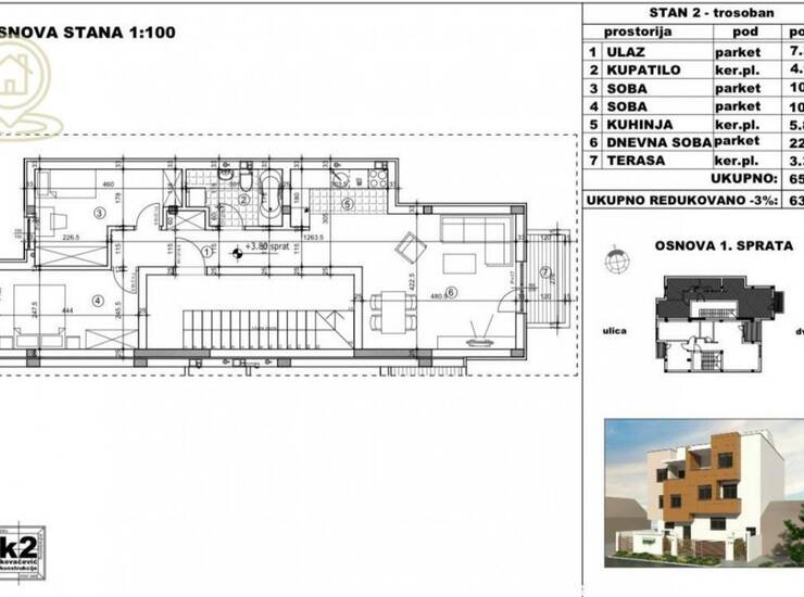
63 m²
Struktura
3.0
Grejanje
Gas
Detalji
- Tip
- Stan
- Struktura
- 3.0
- Cena
- 136.702€
- Površina
- 63 m² (2 169 €/m²)
- Sprat
- 1
- Ukup. spratova
- 2
- Grejanje
- Gas
- Terasa
- Da
- Garaža
- Da
- Parking
- Da
- Nameštenost
- Prazan
- Ažuriran
- 16.12.2025
- ID
- 1466119
Opis
Prodaja trosobnih stanova Telep – kvalitetna gradnja, 63–77m², prizemlje, sprat i potkrovlje
Na prodaju trosobni stanovi na Telepu, površine od 63 do 77 kvadrata, u modernoj zgradi vrhunske gradnje. Stanovi su dostupni u prizemlju, na prvom spratu i u potkrovlju, sa pažljivo osmišljenim rasporedom prostorija i odličnom izolacijom.
✅ Lokacija: miran deo Telepa, u blizini škole, vrtića, prodavnica i autobuskih linija
✅ Struktura: trosobni stanovi od 63m² do 77m²
✅ Spratnost: prizemlje, prvi sprat i potkrovlje
✅ Gradnja: odličan kvalitet, savremeni materijali, energetski efikasni prozori i fasada
✅ Uskoro useljivo
Ovi stanovi na Telepu idealni su za porodično stanovanje ili investiciju.
Agencijska provizija u skladu sa opštim uslovima poslovanja.
Kompas nekretnine – Vaš pouzdan partner u kupovini i prodaji nekretnina.
Kontakt info
- Agencija
-
Kompas Nekretnine
- Reg. posrednika br.
- 1596
- Kontakt osoba
- Nikola Milovanović
- Telefon 1
- 06969... Prikaži broj
- Adresa
- Kumodraška 144
- Voždovac
- Beograd , Srbija
Slične nekretnine
Oglas
- 136.752€ 56 m2
Novi Sad, Telep - Uknjižen dvoiposoban stan ID#1000945
- 136.500€ 47 m2
Novi Sad, Telep, Drvarska , 2.0, 49m2, 136000EUR
- 136.000€ 49 m2
Jednoiposoban stan NOVI SAD, 136000€
- 136.000€ 49 m2
Novi Sad, Telep, Pavla Bakića, 2.5, 53m2, 135000EUR
- 135.000€ 53 m2
Dvosoban stan NOVI SAD, 138430€
- 138.430€ 56 m2
Jednoiposoban stan na prodaju. TELEP
- 135.000€ 42 m2
Novi Sad, Telep, Gorana Kovačića, 3.0, 63m2, 139216EUR
- 139.216€ 63 m2
Novi Sad, Telep, Bogdana Šuputa, 4.5, 93m2, 140000EUR
- 140.000€ 93 m2
Novi Sad, Telep, Somborska , 2.5, 57m2, 140000EUR
- 140.000€ 57 m2