Prodaja trosobnih stanova Telep – kvalitetna gradnja, 63–77m²
, Telep, Novi Sad, Srbija
190.400€
2 441 €/m²
Tip
Stan
Površina
78 m²
Struktura
3.0
Grejanje
Gas
Detalji
- Tip
- Stan
- Struktura
- 3.0
- Cena
- 190.400€
- Površina
- 78 m² (2 441 €/m²)
- Sprat
- 2
- Ukup. spratova
- 2
- Grejanje
- Gas
- Terasa
- Da
- Garaža
- Da
- Parking
- Da
- Nameštenost
- Prazan
- Ažuriran
- 31.10.2025
- ID
- 1455026
Opis
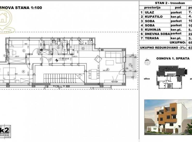
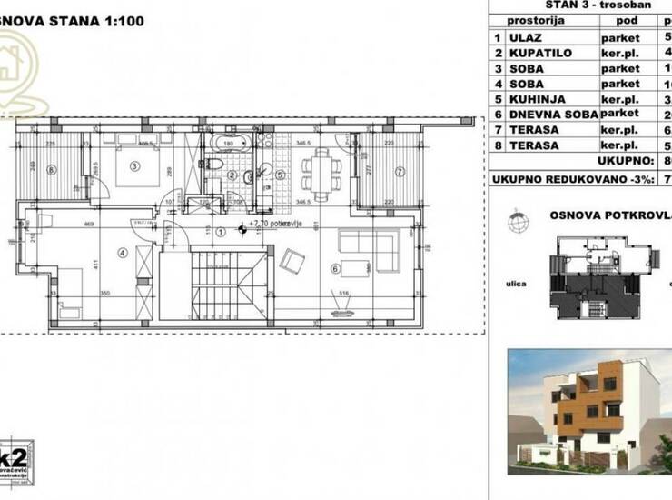
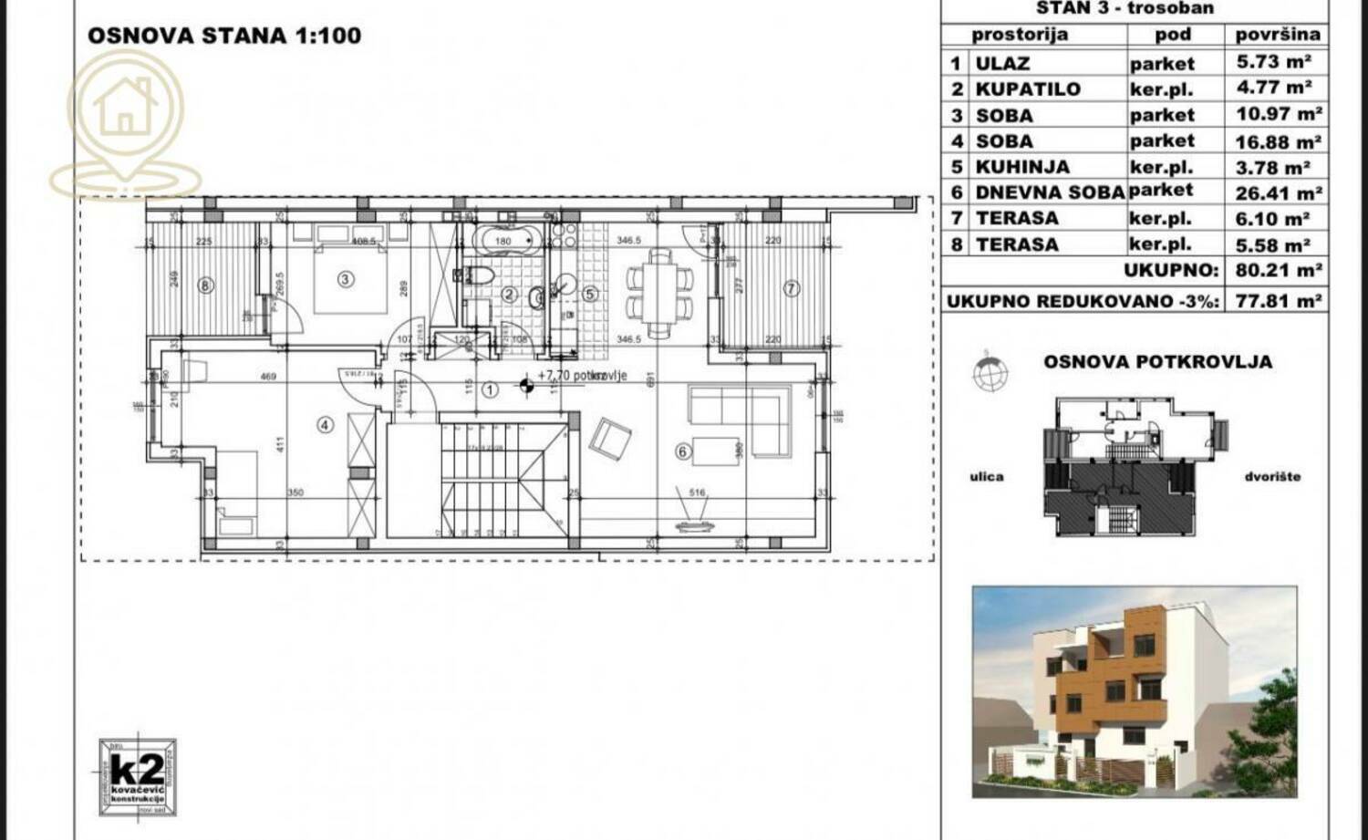
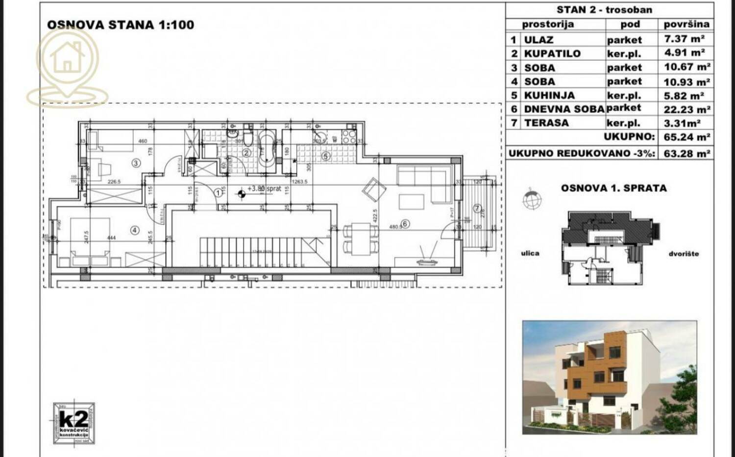
Prodaja trosobnih stanova Telep – kvalitetna gradnja, 63–77m², prizemlje, sprat i potkrovlje
Na prodaju trosobni stanovi na Telepu, površine od 63 do 77 kvadrata, u modernoj zgradi vrhunske gradnje. Stanovi su dostupni u prizemlju, na prvom spratu i u potkrovlju, sa pažljivo osmišljenim rasporedom prostorija i odličnom izolacijom.
✅ Lokacija: miran deo Telepa, u blizini škole, vrtića, prodavnica i autobuskih linija
✅ Struktura: trosobni stanovi od 63m² do 77m²
✅ Spratnost: prizemlje, prvi sprat i potkrovlje
✅ Gradnja: odličan kvalitet, savremeni materijali, energetski efikasni prozori i fasada
✅ Uskoro useljivo
Ovi stanovi na Telepu idealni su za porodično stanovanje ili investiciju.
Agencijska provizija u skladu sa opštim uslovima poslovanja.
Kompas nekretnine – Vaš pouzdan partner u kupovini i prodaji nekretnina.
Kontakt info
 
                                                                                                    
                                                                                                                                                                                                                                                                                            - Agencija
- 
                                                            
                                                                Kompas Nekretnine
- Reg. posrednika br.
- 1596
- Kontakt osoba
- Nikola Milovanović
- Telefon 1
- 06969... Prikaži broj
- Adresa
- Kumodraška 144
- Voždovac
- Beograd , Srbija
Slične nekretnine
 
                                                                    
                                Novi Sad, Telep, Gorana Kovačića, 3.0, 78m2, 190400EUR
- 190.400€ 78 m2
 
                                                                    
                                Četvorosoban stan NOVI SAD, 190350€
- 190.350€ 94 m2
 
                                                                    
                                Četvorosoban stan NOVI SAD, 189830€
- 189.830€ 105 m2
 
                                                                    
                                Novi Sad, Telep, , 3.0, 70m2, 192000EUR
- 192.000€ 70 m2
 
                                                                    
                                Novi Sad, Telep, Ćirila i Metodija, 4.0, 82m2, 188600EUR
- 188.600€ 82 m2
 
                                                                    
                                Novi Sad, Telep, Heroja Pinkija, 4.0, 77m2, 192500EUR
- 192.500€ 77 m2
 
                                                                    
                                Prodaja stanova Telep – Novi Sad! Urbane vile , lux stanovi
- 188.600€ 82 m2
 
                                                                    
                                Četvorosoban stan NOVI SAD, 193180€
- 193.180€ 78 m2
 
                                                                    
                                Stan sa 7 soba NOVI SAD, 186950€
- 186.950€ 165 m2
 
                                                                    
                                Četvorosoban stan NOVI SAD, 195000€
- 195.000€ 94 m2
 
                                                                    
                                Novi Sad, Telep - Uknjižen dvoiposoban stan ID#1001070
- 195.700€ 66 m2
 
                                                         
                                                             
                                                             
                                                             
                                                 
                                                     
                                                     
                                                    