Prodaja trosobnih stanova Telep – kvalitetna gradnja, 63–77m²
, Telep, Novi Sad, Srbija
132.720€
2 106 €/m²
Tip
Stan
Površina
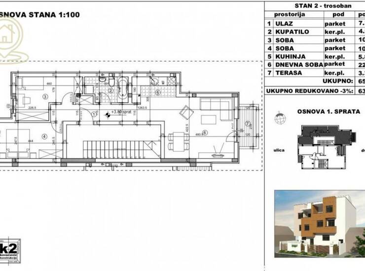
63 m²
Struktura
3.0
Grejanje
Gas
Detalji
- Tip
- Stan
- Struktura
- 3.0
- Cena
- 132.720€
- Površina
- 63 m² (2 106 €/m²)
- Sprat
- 1
- Ukup. spratova
- 2
- Grejanje
- Gas
- Terasa
- Da
- Garaža
- Da
- Parking
- Da
- Nameštenost
- Prazan
- Ažuriran
- 31.10.2025
- ID
- 1455018
Opis
Prodaja trosobnih stanova Telep – kvalitetna gradnja, 63–77m², prizemlje, sprat i potkrovlje
Na prodaju trosobni stanovi na Telepu, površine od 63 do 77 kvadrata, u modernoj zgradi vrhunske gradnje. Stanovi su dostupni u prizemlju, na prvom spratu i u potkrovlju, sa pažljivo osmišljenim rasporedom prostorija i odličnom izolacijom.
✅ Lokacija: miran deo Telepa, u blizini škole, vrtića, prodavnica i autobuskih linija
✅ Struktura: trosobni stanovi od 63m² do 77m²
✅ Spratnost: prizemlje, prvi sprat i potkrovlje
✅ Gradnja: odličan kvalitet, savremeni materijali, energetski efikasni prozori i fasada
✅ Uskoro useljivo
Ovi stanovi na Telepu idealni su za porodično stanovanje ili investiciju.
Agencijska provizija u skladu sa opštim uslovima poslovanja.
Kompas nekretnine – Vaš pouzdan partner u kupovini i prodaji nekretnina.
Kontakt info
 
                                                                                                    
                                                                                                                                                                                                                                                                                            - Agencija
- 
                                                            
                                                                Kompas Nekretnine
- Reg. posrednika br.
- 1596
- Kontakt osoba
- Nikola Milovanović
- Telefon 1
- 06969... Prikaži broj
- Adresa
- Kumodraška 144
- Voždovac
- Beograd , Srbija
Slične nekretnine
 
                                                                    
                                Novi Sad, Telep, , 3.0, 51m2, 132600EUR
- 132.600€ 51 m2
 
                                                                    
                                Novi Sad, Telep, Petefi Šandora, 2.5, 49m2, 132300EUR
- 132.300€ 49 m2
 
                                                                    
                                Novi Sad, Telep, Futoški put , 3.0, 58m2, 130500EUR
- 130.500€ 58 m2
 
                                                                    
                                Novi Sad, Telep, Pavla Bakića, 2.5, 53m2, 135000EUR
- 135.000€ 53 m2
 
                                                                    
                                Novi Sad, Telep, Heroja Pinkija, 3.0, 52m2, 130000EUR
- 130.000€ 52 m2
 
                                                                    
                                Novi Sad, Telep, Dinarska , 3.0, 62m2, 130000EUR
- 130.000€ 62 m2
 
                                                                    
                                Dvoiposoban stan NOVI SAD, 130000€
- 130.000€ 46 m2
 
                                                                    
                                Jednoiposoban stan na prodaju. TELEP
- 135.000€ 42 m2
 
                                                                    
                                Novi Sad, Telep, , 2.0, 54m2, 129936EUR
- 129.936€ 54 m2
 
                                                         
                                                             
                                                 
                                                     
                                                                     
                                                                    