Jednoiposoban stan, Niš | Prodaja · 50m² · 111.250€
, Palilula, Niš, Srbija
111.250€
2 225 €/m²
Novogradnja na Paliluli kod pijace – 51m², povraćaj PDV
Tip
Stan
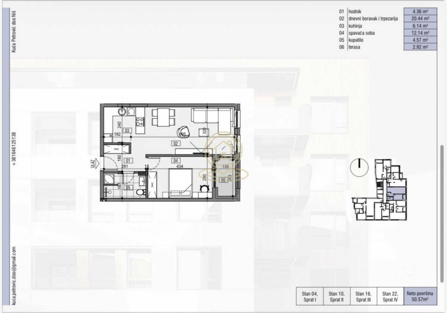
Površina
50 m²
Struktura
1.5
Grejanje
Etažno
Detalji
- Tip
- Stan
- Struktura
- 1.5
- Cena
- 111.250€
- Površina
- 50 m² (2 225 €/m²)
- Sprat
- 4
- Ukup. spratova
- 5
- Grejanje
- Etažno
- Terasa
- Da
- Lift
- Da
- Garaža
- Da
- Parking
- Da
- Nameštenost
- Prazan
- Ažuriran
- 16.04.2026
- ID
- 1494142
Opis
Na prodaju moderan stan u novogradnji na Paliluli, u blizini pijace, površine 51m². Stan se nalazi na atraktivnoj lokaciji koja je idealna kako za život, tako i za izdavanje.
Odlikuje ga kvalitetna gradnja, funkcionalan raspored i savremeni standardi koji pružaju maksimalan komfor. Posebna pogodnost je mogućnost povraćaja PDV-a, što ovu nekretninu čini još isplativijom kupovinom.
U blizini se nalaze pijaca, prodavnice, škole, kao i svi neophodni sadržaji za svakodnevni život, uz dobru povezanost sa ostatkom grada.
Odlična prilika za sigurnu investiciju ili rešavanje stambenog pitanja.
Agencijska provizija je u skladu sa opatim uslovima poslovanja
Kontakt info
- Agencija
-
Kompas Nekretnine
- Reg. posrednika br.
- 1596
- Kontakt osoba
- Nikola Milovanović
- Telefon 1
- 06969... Prikaži broj
- Adresa
- Kumodraška 144
- Voždovac
- Beograd , Srbija
Slične nekretnine
Na prodaju nov 2.5 stan na Paliluli sa parkingom
- 108.000€ 60 m2
Novogradnja, Mokranjčeva
- 105.000€ 60 m2
Dvosoban stan u luksuznom stambeno-poslovnom kompleksu
- 108.544€ 52 m2
2.5, Fakultet Zaštite na radu
- 110.000€ 62 m2
Dvosoban stan u luksuznom stambeno-poslovnom kompleksu
- 110.219€ 51 m2
Dvosoban stan u luksuznom stambeno-poslovnom kompleksu
- 111.440€ 47 m2
Dvosoban stan u luksuznom stambeno-poslovnom kompleksu
- 111.490€ 51 m2
Novogradnja, dvoiposoban stan 60m2, Palilula
- 110.000€ 60 m2
3.5 stan, 59.5m2, Mokranjčeva, Palilula
- 113.000€ 59 m2
Novogradnja 2.5, 59 m2, Mokranjčeva
- 112.100€ 59 m2
Novogradnja, niška pivara, 2.5 povrat PDV-a
- 112.680€ 62 m2
Novogradnja, Mokranjčeva
- 97.960€ 55 m2