Dvoiposoban stan, Niš - Donja Vrežina | Prodaja · 59m² · 104.360€
Nikole Rašića Koleta , Donja Vrežina, Pantelej, Niš, Srbija
104.360€
1 768 €/m²
Novogradnja, Donja Vrežina, Parking, PDV
Tip
Stan
Površina
59 m²
Struktura
2.5
Grejanje
Etažno
Detalji
- Tip
- Stan
- Struktura
- 2.5
- Cena
- 104.360€
- Površina
- 59 m² (1 768 €/m²)
- Sprat
- Prizemlje
- Ukup. spratova
- 4
- Grejanje
- Etažno
- Lift
- Da
- Parking
- Da
- Ažuriran
- 17.05.2026
- ID
- 1492785
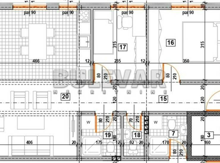
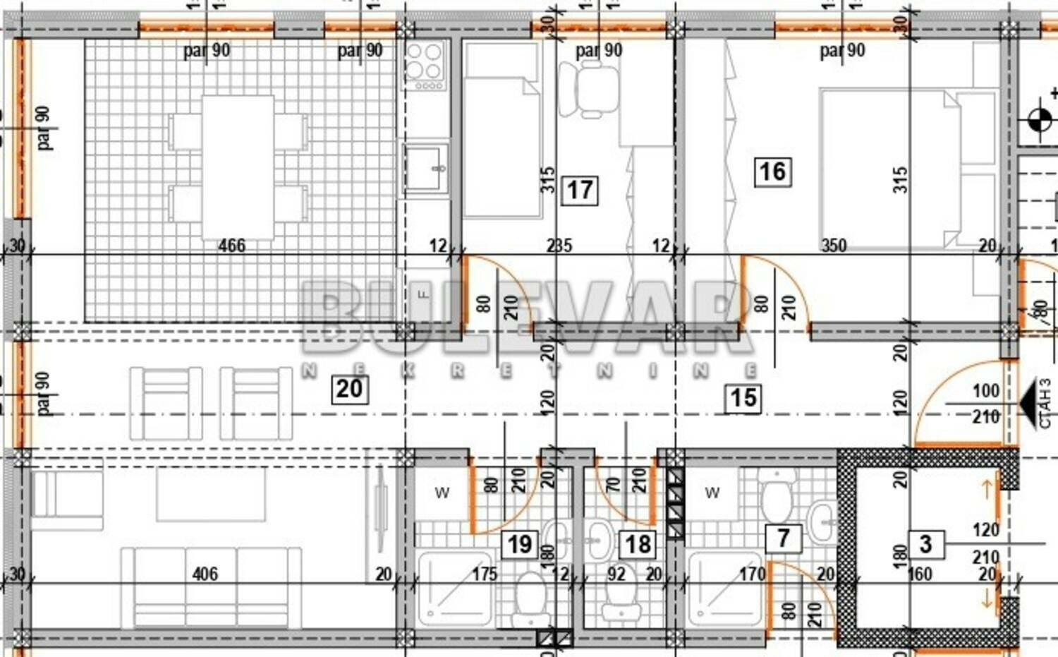
Opis
Na prodaju stan u izgradnji u Donjoj Vrežini, u neposrednoj blizini DIS-a, Lidl-a i naselja „Beverly Hills“.
Moderan stambeni objekat spratnosti Po+P+4, sa ukupno 21-om stambenom jedinicom i toliko podrumskih prostorija, kao i parking mesta.
Stan je projektovane površine 59,63m2, nalazi se u prizemlju zgrade. Po strukturi je dvoiposoban i sastoji se od ulaznog hodnika, dnevne sobe, trpezarije, kuhinje, dve spavaće sobe, kupatila, zasebnog sanitarnog čvora.
Gradi se po visokim standardima, demit fasada, energetski pasoš, spoljna PVC (antracit) stolarija, podne obloge od prvoklasne keramike I tarketa.
Mogućnost kupovine parking mesta i mogućnost kupovine dela parcele na trajno korišćenje.
Očekivani rok zavšetka radova je januara 2028-e godine.
Kontakt info
- Agencija
-
Bulevar Nekretnine
- Reg. posrednika br.
- 519
- Kontakt osoba
- Bulevar Nekretnine
- Telefon 1
- 060054... Prikaži broj
- Telefon 2
- + 381 18 577... Prikaži broj
- Adresa
- Trg Kralja Aleksandra 2a lokal m15
- Preko puta Pravnog fakulteta, zgrada Aleksandrija
- Niš , Srbija
Slične nekretnine
Funkcionalan dvoiposoban stan sa terasom
- 98.000€ 56 m2
Novogradnja Donja Vrežina 48,74m2-Treći sprat
- 98.000€ 49 m2
Na prodaju trosoban stan na Panteleju
- 98.000€ 56 m2
Novogradnja Donja Vrežina 49,28m2-Drugi sprat
- 98.560€ 49 m2
Novogradnja, Čalije
- 98.100€ 47 m2
Uskoro useljiva novogradnja na Panteleju
- 100.800€ 56 m2
2.5 stan na Panteleju
- 96.000€ 54 m2
Trosoban stan 56 m², Pantelej, Somborska, 1. sprat
- 100.800€ 56 m2
Novogradnja, Čalije
- 97.050€ 47 m2
Dvoiposoban stan u novogradnji, Pantelej
- 101.574€ 56 m2
Dvosoban stan 46 m², Pantelej, Niš, 3. sprat
- 101.000€ 46 m2
NOVOGRADNJA U DURLANU, DVOIPOSOBAN, EG, PDV, PARKING
- 101.850€ 46 m2