Trosoban stan, Beograd - Mirijevo | Prodaja · 64m² · 160.000€
, Mirijevo, Zvezdara, Beograd, Srbija
160.000€
2 500 €/m²
Mirijevo– moderan stan, novogradnja lux ID#1627
Tip
Stan
Površina
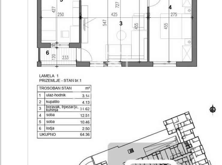
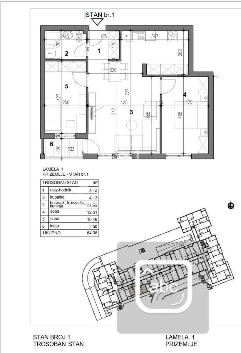
64 m²
Struktura
3.0
Grejanje
Etažno
Detalji
- Tip
- Stan
- Struktura
- 3.0
- Cena
- 160.000€
- Površina
- 64 m² (2 500 €/m²)
- Sprat
- Visoko prizemlje
- Ukup. spratova
- 4
- Grejanje
- Etažno
- Terasa
- Da
- Lift
- Da
- Garaža
- Da
- Nameštenost
- Prazan
- Uknjižen
- Da
- Ažuriran
- 26.03.2026
- ID
- 1492040
Opis
NOVOGRADNJA MIRIJEVO – MODERAN STAN U PRIRODNOM OKRUŽENJU
Cena stana je 160000 eur
Predstavljamo vam jedinstvenu priliku za savremeno i komforno stanovanje u jednom od najlepših delova Mirijeva – na uzvišenju sa panoramskim pogledom na Dunav i Avalu!
Stan se sastoji iz hodnika,dnevno trpezarijskog boravka sa kuhinjom, dve spavaće sobe, kupatila i lođe sa prelepim pogledom.
Lokacija:
Mirna i zelena zona, idealna za porodičan život – udaljena od buke i saobraćaja, a na samo par minuta od:
gradskog prevoza,škola ,vrtića, marketa, banke, pijace i Doma zdravlja
O zgradi:
Novogradnja – rok završetka mart 2026.
Dve lamele, po četiri sprata + povučeni sprat
Dva lifta, podzemna garažai Rampa za invalide
Kvalitet gradnje:
Hrastov višeslojni parket, termo blokovi poboljšanih karakteristika, PVC stolarija sa dvoslojnim staklom i aluminijumske roletne
Stanovi su opremljeni:
Norveškim radijatorima,Walk-in tuševima,sušačima veša i kvalitetnim pločicama renomiranih brendova
Dodatne pogodnosti:
Garažna mesta sa ventilacijom i protivpožarnim sistemom koje možete kupiti po ceni od 12000 eur sa uračunatim PDV(20%).
Mogućnost ugradnje elektro-punjača (uz doplatu)
Cena:
Za više informacija, prezentaciju stana i rezervacije, kontaktirajte nas već danas. . Agencijska provizija 2%
Kontakt info
- Agencija
-
PORTA NEKRETNINE
- Reg. posrednika br.
- 935
- Kontakt osoba
- Zorica Tanasković
- Telefon 1
- + 381/6973... Prikaži broj
- Telefon 2
- 011/420... Prikaži broj
- Adresa
- Tadeuša Košćuška 94
- Stari Grad
- Beograd , Srbija
Slične nekretnine
3.0, Severni bulevar, Kosare Cvetković, 45m2
- 155.000€ 45 m2
Zvezdara, Cvetanova ćuprija - Predraga Tomića, 87m2
- 147.900€ 87 m2
Zvezdara - Bulevar kralja Aleksandra, 46m2
- 147.200€ 46 m2
Mirijevo, 16.oktobra, 59m2 ID#1605
- 157.000€ 59 m2
Zvezdara, Mirijevo, Matice srpske, 3.0, 108m2, 150000EUR
- 150.000€ 108 m2
Zvezdara - Bulevar kralja Aleksandra, 48m2
- 142.650€ 48 m2
Konjarnik, Karla Lukača, 51m2 ID#1608
- 165.000€ 51 m2
Luxuzni stanovi malih kvadratura
- 138.600€ 46 m2
PRODAJA, 3.0 STANA U NASELJU VOJVODE VLAHOVICA
- 140.000€ 40 m2
hitno nov stan cena dogovor ID#5668
- 140.000€ 52 m2