Prodaja stanova Novi Sad Petrovaradin – Novogradnja, Po+P+3+Pk, odlična loka

, Petrovaradin, Novi Sad, Srbija

80.513€

2 516 €/m²

Novo 3
Jednosoban stan, Novi Sad, prodaja, 32m2, 80513e, id1476814
Jednosoban stan, Novi Sad, prodaja, 32m2, 80513e, id1476814
Jednosoban stan, Novi Sad, prodaja, 32m2, 80513e, id1476814
Tip

Stan

Površina

32 m²

Struktura

1.0

Grejanje

Gas

Detalji

Tip
Stan
Struktura
1.0
Cena
80.513€
Površina
32 m² (2 516 €/m²)
Sprat
2
Ukup. spratova
4
Grejanje
Gas
Terasa
Da
Lift
Da
Garaža
Da
Parking
Da
Ažuriran
24.01.2026
ID
1476814

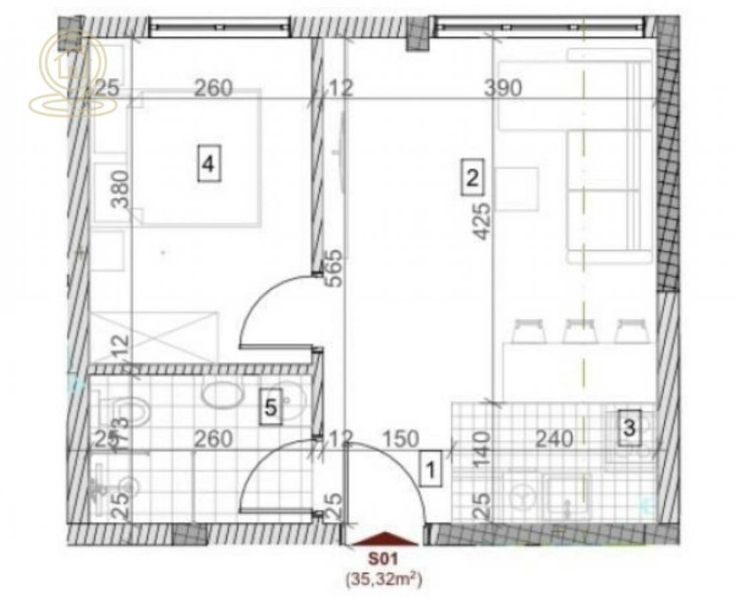
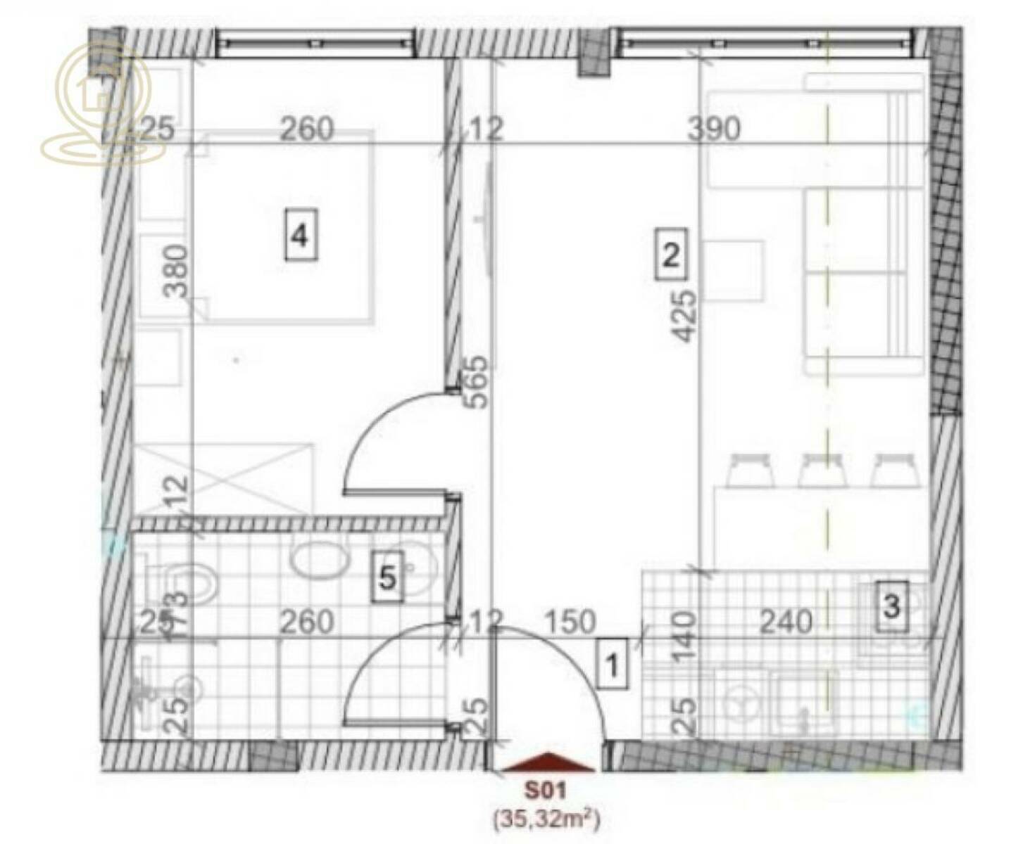
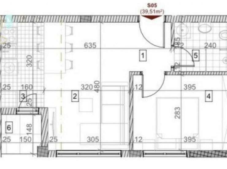
Opis

Prodaja stanova u Novom Sadu – moderni jednosobni, dvosobni, trosobni i četvorosobni stanovi u novogradnji na odličnoj lokaciji, sa planiranim završetkom radova 30. aprila 2027. godine.
Objekat je višeporodični stambeni kompleks (Po+P+3+Pk) sa ukupno 86 stambenih jedinica i 86 garažnih mesta.
Stanovi površine od 29 m² do 101 m², idealni za porodično stanovanje ili investiciju.


Skice stana mozete dobiti nakon potpisivanja ugovora jer ove iz oglasa ne odgovaraju ovom stanu,
kod nas kupac ne placa proviziju a cene su izrazene bez pdv

Tehničke karakteristike objekta

Grejanje na gas – veoma ekonomičan i pouzdan sistem, sa mogućnošću individualnog podešavanja za svaki stan

Šestokomorna PVC stolarija nemačkog profila – firma DIKIĆ

Sigurnosna vrata čelične konstrukcije, prirodne boje drveta – PORTA NS

Staklene ograde na balkonima

Tarkett parket troslojni 14 mm, sa kraljevskom lajsnom visine 6 cm

Geberit skriveni vodokotlić, Gorenje bojler 80 L

Demit fasada sa 10 cm termoizolacije

Betonska krovna ploča 20 cm + izolacija od kamene vune 20 cm

Ova novogradnja u Novom Sadu nudi savremeni kvalitet gradnje, energetsku efikasnost i moderan dizajn. Svaki stan ima zasebno grejanje na gas, odličnu zvučnu i toplotnu izolaciju, kao i moderan enterijer.

Odlična lokacija – blizina škola, vrtića, prodavnica i javnog prevoza čini ove stanove idealnim za porodični život ili kao investiciju za izdavanje.

Cena bez PDV-a

Napomena:

Pri

Kontakt info

Kompas Nekretnine
Reg. posrednika br.
1596
Kontakt osoba
Nikola Milovanović
Telefon 1
06969... Prikaži broj
Adresa
Kumodraška 144
Voždovac
Beograd , Srbija

Kontaktiraj oglašivača

Slične nekretnine