Prodaja trosobnih stanova Telep – kvalitetna gradnja, 63–77m²
, Telep, Novi Sad, Srbija
215.723€
2 765 €/m²
Tip
Stan
Površina
78 m²
Struktura
3.0
Grejanje
Gas
Detalji
- Tip
- Stan
- Struktura
- 3.0
- Cena
- 215.723€
- Površina
- 78 m² (2 765 €/m²)
- Sprat
- 2
- Ukup. spratova
- 2
- Grejanje
- Gas
- Terasa
- Da
- Garaža
- Da
- Parking
- Da
- Nameštenost
- Prazan
- Ažuriran
- 12.02.2026
- ID
- 1482357
Opis
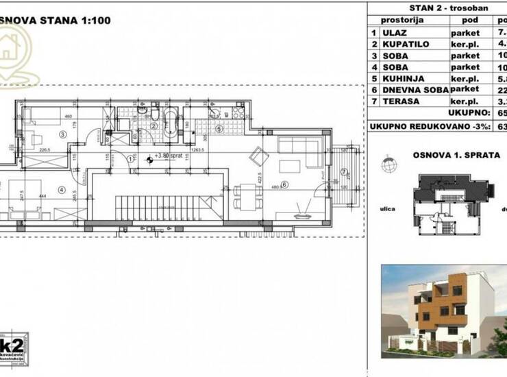
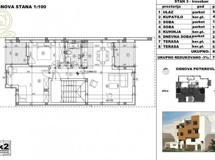
Prodaja trosobnih stanova Telep – kvalitetna gradnja, 63–77m², prizemlje, sprat i potkrovlje
Na prodaju trosobni stanovi na Telepu, površine od 63 do 77 kvadrata, u modernoj zgradi vrhunske gradnje. Stanovi su dostupni u prizemlju, na prvom spratu i u potkrovlju, sa pažljivo osmišljenim rasporedom prostorija i odličnom izolacijom.
✅ Lokacija: miran deo Telepa, u blizini škole, vrtića, prodavnica i autobuskih linija
✅ Struktura: trosobni stanovi od 63m² do 77m²
✅ Spratnost: prizemlje, prvi sprat i potkrovlje
✅ Gradnja: odličan kvalitet, savremeni materijali, energetski efikasni prozori i fasada
✅ Uskoro useljivo
Ovi stanovi na Telepu idealni su za porodično stanovanje ili investiciju.
Agencijska provizija u skladu sa opštim uslovima poslovanja.
Kompas nekretnine – Vaš pouzdan partner u kupovini i prodaji nekretnina.
Kontakt info
- Agencija
-
Kompas Nekretnine
- Reg. posrednika br.
- 1596
- Kontakt osoba
- Nikola Milovanović
- Telefon 1
- 06969... Prikaži broj
- Adresa
- Kumodraška 144
- Voždovac
- Beograd , Srbija
Slične nekretnine
Oglas
- 217.536€ 88 m2
Novi Sad, Telep, Futoški put, 4.0, 83m2, 217906EUR
- 217.906€ 83 m2
Novi Sad, Telep, Kotorska, 4.0, 95m2, 218500EUR
- 218.500€ 95 m2
Novi Sad, Telep, , 4.0, 92m2, 211600EUR
- 211.600€ 92 m2
Novi Sad, Telep, Heroja Pinkija, 4.0, 83m2, 219950EUR
- 219.950€ 83 m2
Novi Sad, Telep - Uknjižen, namešten trosoban stan ID#1000243
- 209.400€ 107 m2
Novi Sad, Telep, , 4.0, 88m2, 224400EUR
- 224.400€ 88 m2