Novi Sad, Nova Detelinara, , 4.0, 107m2, 246100EUR
, Nova Detelinara, Novi Sad, Srbija
246.100€
2 300 €/m²
Tip
Stan
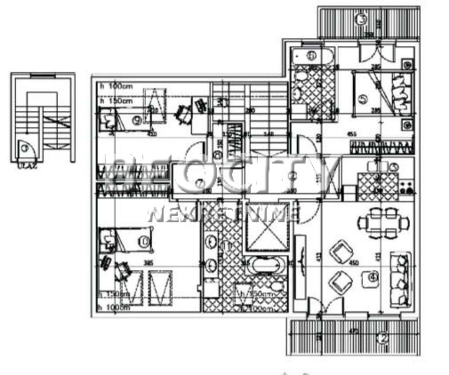
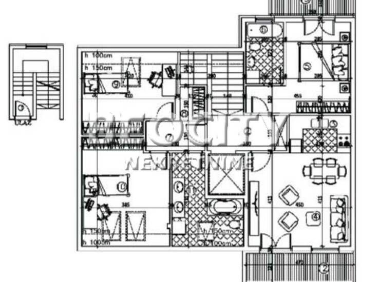
Površina
107 m²
Struktura
4
Grejanje
Centralno
Detalji
- Tip
- Stan
- Struktura
- 4
- Cena
- 246.100€
- Površina
- 107 m² (2 300 €/m²)
- Sprat
- 4
- Ukup. spratova
- 4
- Grejanje
- Centralno
- Terasa
- Da
- Lift
- Da
- Ažuriran
- 10.01.2026
- ID
- 1474075
Opis
Agencijski ID: 117011, IV/IV, lift, terasa, ulaz mermerni, novogradnja. Prodaje se stan 107,78 m2, na Novoj Detelinari. Povrat PDV. LIFT. 3 spavace sobe. 2 terase. Velika dnevna soba 18,76 m2. Ulaz: 1,50 m2 malo predsoblje. Iz njega nekoliko stepenica vodi u ovaj prelep stan! Podovi: toplotna i zvucna i hidroizolacija. Parket: uvoz iz Svedske 120x30 cm. Pregradni zidovi 25 cm, termoblok. Klima. Grejanje gradsko. Termostat u stanu za podesavanje temperature. Aluminijumske roletne. Agent je video stan i stan je za preporuku. Odlicna povezanost sa centrom grada, fakultetima. Blizina Sajma. Dovoljno parking mesta. Parking je javni. Pouzdan investitor. Gradnja po dobijenim medjunarodnim sertifikatima ISO14001, ISO 45001, ISO 9001, sto garantuje maksimalnu udobnost i sigurnost zivljenja. Energetski pasos. Stan bez kosina. Moguc kredit. Vise informacija na: www.beocitynekretnine.rs Agencijska provizija 3%. Telefoni: 021/399-0210 060/399-... Prikaži broj . Kontakt van radnog vremena: kancelarija@beocitynekretnine.rs
Kontakt info
- Agencija
-
BEOCITY NEKRETNINE
- Reg. posrednika br.
- 554
- Kontakt osoba
- Beocity Nekretnine
- Telefon 1
- 060/328-... Prikaži broj
- Telefon 2
- 011/328-... Prikaži broj
- Adresa
- Makenzijeva 22
- Beograd , Srbija
Slične nekretnine
Trosoban stan NOVI SAD, 247000€
- 247.000€ 95 m2
Trosoban stan NOVI SAD, 247500€
- 247.500€ 90 m2
Trosoban stan NOVI SAD, 249000€
- 249.000€ 63 m2
Petosoban stan NOVI SAD, 250000€
- 250.000€ 143 m2
Troiposoban stan NOVI SAD, 242000€
- 242.000€ 87 m2
Novi Sad, Nova Detelinara, , 4.0, 87m2, 234900EUR
- 234.900€ 87 m2
Novi Sad, Nova Detelinara, , 4.0, 87m2, 234900EUR
- 234.900€ 87 m2
Novi Sad, Nova Detelinara, , 5.0, 145m2, 260000EUR
- 260.000€ 145 m2
Novi Sad, Nova Detelinara, , 5.0, 145m2, 260000EUR
- 260.000€ 145 m2
Četvorosoban stan NOVI SAD, 262030€
- 262.030€ 106 m2