Dvoiposoban stan 59, 61m2, I sprat - Novi ritam Novog Sada - 118.028€
, Veternik, Novi Sad, Srbija
118.028€
2 000 €/m²
Tip
Stan
Površina
59 m²
Struktura
2.5
Detalji
- Tip
- Stan
- Struktura
- 2.5
- Cena
- 118.028€
- Površina
- 59 m² (2 000 €/m²)
- Sprat
- 1
- Terasa
- Da
- Ažuriran
- 10.02.2026
- ID
- 1481026
Opis
Zadovoljstvo nam je što smo u prilici da ponudimo stanove u novogradnji koji se prostiru u sklopu savremenog stambenog kompleksa, osmišljen kako bi spojio komfor urbanog života sa prirodnim okruženjem.
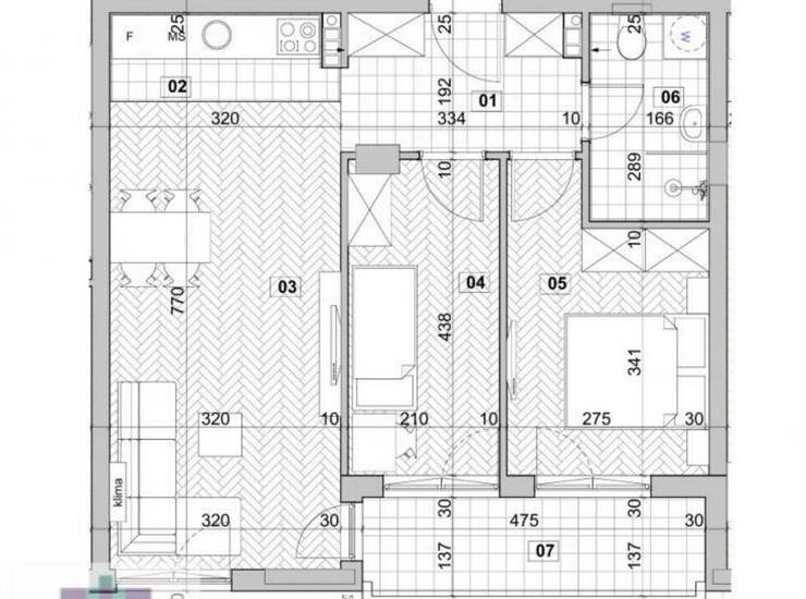
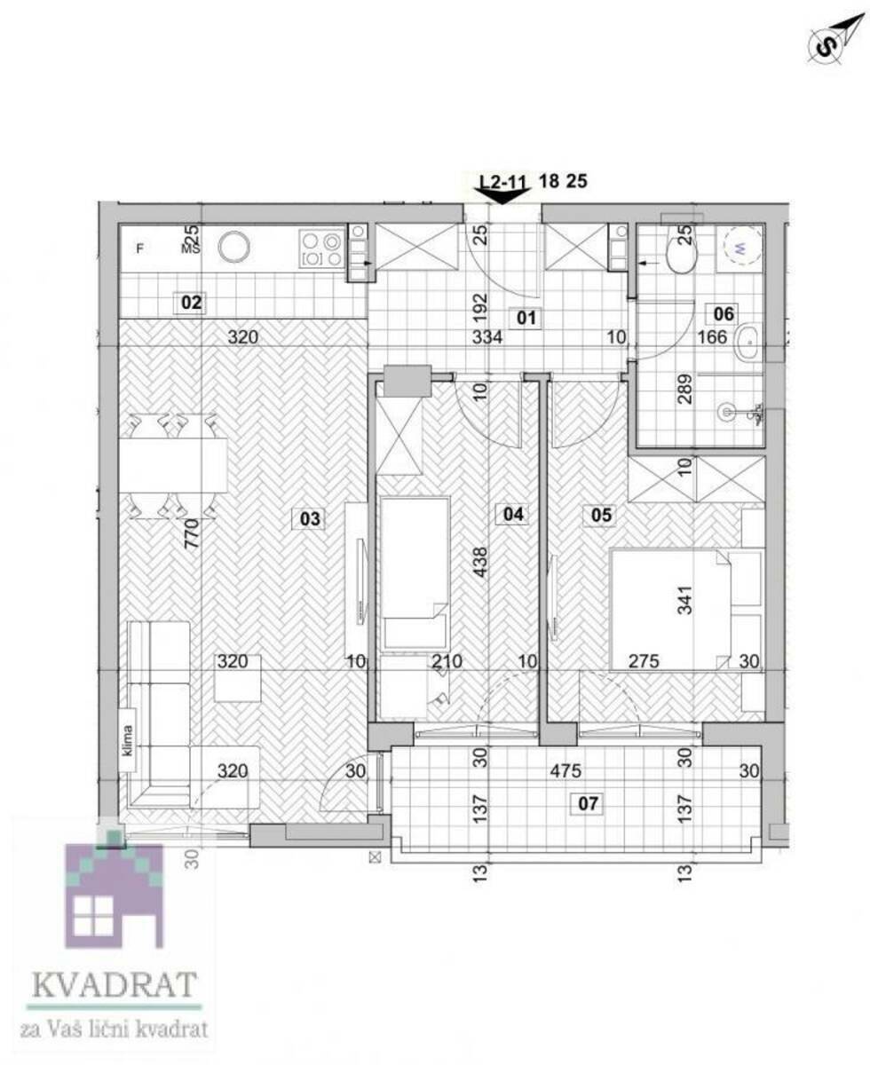
Stan 59.61m² se nalazi na prvom spratu i sastoji se iz hodnika, dnevne sobe sa kuhinjom i trpezarijom, 2 spavaće sobe, kupatila i terase.
Pouzdan i siguran investitor koji se sa bogatim iskustvom i profesionalnim timom posvećeno bavi izgradnjom modernih i kvalitetnih stambenih kompleksa.
Svaki projekat grade sa posebnom pažnjom posvećujući se svakom detalju i osiguravajući vrhunski kvalitet gradnje.
Obezbeđuju najbolji odnos cene, kvaliteta i lokaliteta u Novom Sadu.
Potpuno nova rezidencijalna lokacija u Novom Sadu, gde je sve podređeno kvalitetu zivota, komforu i zdravlju buducih stanovnika.
Projektovan je kao stambeni kompleks, spratnosti Po+Pr+3.
Dvoiposobni stanovi su dostupni u lamelama 2 i 3,na I, II i III spratu.
Cena je 1980€/m² do 2090€/m² ( sa PDV-om)- zavisno od načina plaćanja.
Mogućnost kupovine putem stambenog kredita.
Više informacija na tel. 062/330-... Prikaži broj i 069/613... Prikaži broj
Agencijska provizija 3% (min. 1000 €)
Ozbiljnost, predanost poslu, kao i visok stepen profesionalizma ističu agenciju Kvadrat na tržištu nekretnina kao veoma sigurnog i pouzdanog partnera svakoj porodici, pojedincu ili preduzeću koje se opredeli da prodaje, kupuje ili iznajmi nekretninu.
Prepustite brigu pronalaženja željene nekretnine našem isk
Kontakt info
- Agencija
-
Agencija Kvadrat Obrenovac
- Reg. posrednika br.
- 482
- Kontakt osoba
- Maja Stević
- Telefon 1
- + 381(0)69 141 9... Prikaži broj
- Adresa
- Vojvode Mišića br. 192 – I sprat
- Obrenovac , Srbija
Slične nekretnine
Troiposoban stan VETERNIK, 140600€
- 140.600€ 74 m2
Trosoban stan VETERNIK, 144200€
- 144.200€ 87 m2
STANOVI U NOVOGRADNJI 40.68m² – Novi Sad - 77.292€
- 77.292€ 40 m2
Stan 29.40m², PR - Novi ritam Novog Sada - 58.212€
- 58.212€ 29 m2
Oglas
- 262.650€ 90 m2