Na prodaju stan - Park Vila Residence, 62m2
, Trošarina, Voždovac, Beograd, Srbija
202.950€
3 273 €/m²
Tip
Stan
Površina
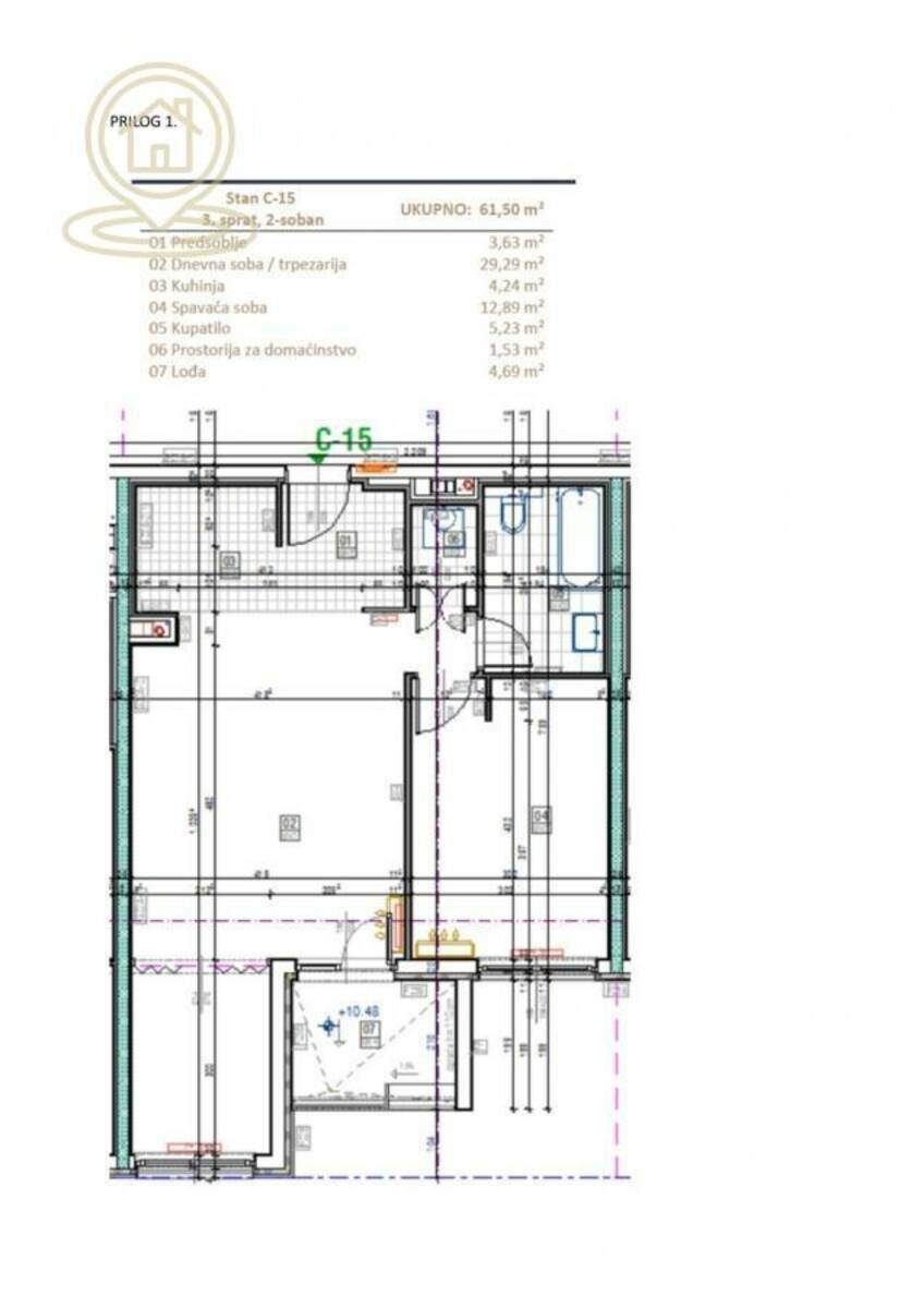
62 m²
Struktura
2.5
Detalji
- Tip
- Stan
- Struktura
- 2.5
- Cena
- 202.950€
- Površina
- 62 m² (3 273 €/m²)
- Sprat
- 3
- Terasa
- Da
- Lift
- Da
- Garaža
- Da
- Nameštenost
- Prazan
- Ažuriran
- 19.11.2025
- ID
- 1460167
Opis
Prodaje se moderan, neuseljavan stan u ekskluzivnom kompleksu Park Vila Residence, jednoj od najtraženijih lokacija na Voždovcu, uz sam Bulevar oslobođenja. Stan se nalazi na trećem spratu kvalitetne novogradnje, idealne za porodični život ili investiranje.
Osnovne prednosti:
• Privatno, ograđeno dvorište od 1700 m² namenjeno isključivo stanarima
• Veliki stambeni kompleks sa sadržajima koji pružaju komfor “malog grada”
• Video-nadzor i obezbeđenje 24/7
• Komercijalna garaža i kontrolisan pristup objektu
• Odlična saobraćajna povezanost i blizina škola, vrtića, fakulteta i svih važnih sadržaja
Garaža u podrumu dostupna je uz doplatu i može se kupiti zajedno sa stanom (25.000 €).
Stan je neuseljavan, odmah dostupan i spreman za uređenje po vašem ukusu.
Agencijska provizija u skladu sa opštim uslovima poslovanja.
Kontakt info
- Agencija
-
Kompas Nekretnine
- Reg. posrednika br.
- 1596
- Kontakt osoba
- Nikola Milovanović
- Telefon 1
- 06969... Prikaži broj
- Adresa
- Kumodraška 144
- Voždovac
- Beograd , Srbija
Slične nekretnine
PRODAJA, 4.0 STAN NA BANJICI, VOZDOVAC
- 203.000€ 84 m2
Voždovac, Autokomanda - Ustanička, 53m2
- 201.400€ 53 m2
2, 0/2, 5 lux renoviran uknjizen ID#5439
- 205.000€ 62 m2
Voždovac, Autokomanda - Ustanička, 54m2
- 205.200€ 54 m2
Stan za prodaju Lekino brdo ID#599458
- 200.000€ 71 m2
Voždovac, Banjica - Paunova, 86m2
- 206.000€ 86 m2
VOZDOVAC VOZDOVAC 80m2 , 199000e
- 199.000€ 80 m2
Banjica, Bulevar oslobođenja, 84m2 ID#1510
- 197.000€ 84 m2
Voždovac, Farmaceutski fakultet - Vojvode Stepe 75m2
- 215.000€ 75 m2