Dvosoban stan, Niš - Donja Vrežina | Prodaja · 51m² · 89.408€
Crnogorska , Donja Vrežina, Pantelej, Niš, Srbija
89.408€
1 753 €/m²
Odlična novogradnja - Minovo naselje, iznad Lidla, stan 51.09m2
Tip
Stan
Površina
51 m²
Struktura
2
Grejanje
Električno
Detalji
- Tip
- Stan
- Struktura
- 2
- Cena
- 89.408€
- Površina
- 51 m² (1 753 €/m²)
- Sprat
- 1
- Ukup. spratova
- 3
- Grejanje
- Električno
- Terasa
- Da
- Lift
- Da
- Parking
- Da
- Ažuriran
- 09.03.2026
- ID
- 1465381
Opis
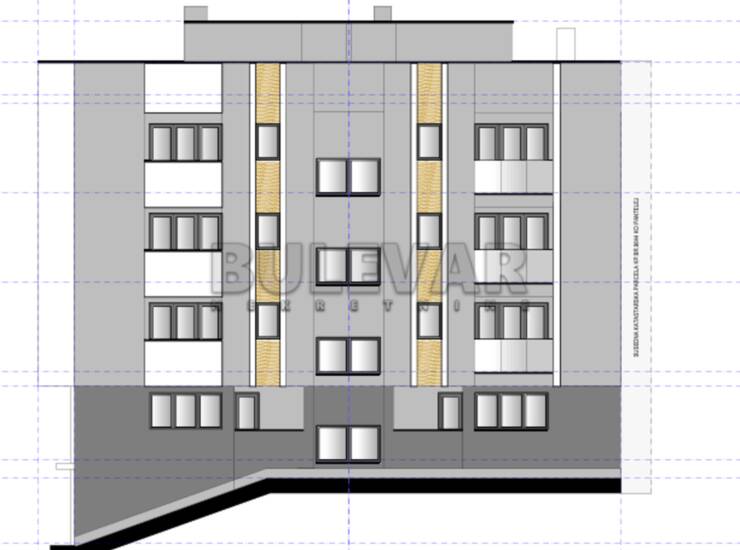
Na prodaju stan u izgradnji u naselju Donja Vrežina iznad Lidla i DISa. U blizini su OŠ Mika Antić, Durlanska pijaca, razni marketi, autobusko stajalište. Stan je projektovane površine 51.09m2, nalazi se na prvom spratu (po projektu dostupan još na drugom i trećem spratu.) u odličnoj novogradnji. Po strukturi je dvosoban i sastoji se od ulaznog hodnika, dnevne sobe sa trpezarijom i kuhinjom, spavaće sobe, kupatila i terase. Gradi se po visokim standardima, demit fasada, energetski pasoš, spoljna PVC stolarija, zidne i podne obloge od prvoklasne keramike, tarket - parket na podovima, svaka jedinica dobija podrumsku prostoriju, a parking mesto se doplaćuje. Očekivani rok zavšetka radova je sredinom 2027-me godine. Odlična ponuda, za više informacija pozovite nas!
Kontakt info
- Agencija
-
Bulevar Nekretnine
- Reg. posrednika br.
- 519
- Kontakt osoba
- Bulevar Nekretnine
- Telefon 1
- 060054... Prikaži broj
- Telefon 2
- + 381 18 577... Prikaži broj
- Adresa
- Trg Kralja Aleksandra 2a lokal m15
- Preko puta Pravnog fakulteta, zgrada Aleksandrija
- Niš , Srbija
Slične nekretnine
Novogradnja Donja Vrežina 48,74m2-Treći sprat
- 85.750€ 49 m2
Novogradnja, Čalije
- 85.033€ 47 m2
Novogradnja na Panteleju, 1.5, 47.07 m2
- 84.160€ 47 m2
Novogradnja, Čalije
- 85.918€ 47 m2
Novogradnja Donja Vrežina 49,28m2-Drugi sprat
- 86.240€ 49 m2
Na prodaju stan u izgradnji 48m2, Donja Vrežina
- 84.200€ 48 m2
Dvosoban stan na Somborskom bulevaru
- 80.500€ 46 m2
Novogradnja, Čalije
- 80.070€ 44 m2
2.5 Stan , Durlan
- 90.730€ 55 m2
Prodaje se prostran, prazan stan u Durlanu
- 92.500€ 53 m2