Stanovi u izgradnji -GARSONJERA
, Centar, Jagodina, Srbija
38.400€
1 600 €/m²
Tip
Stan
Površina
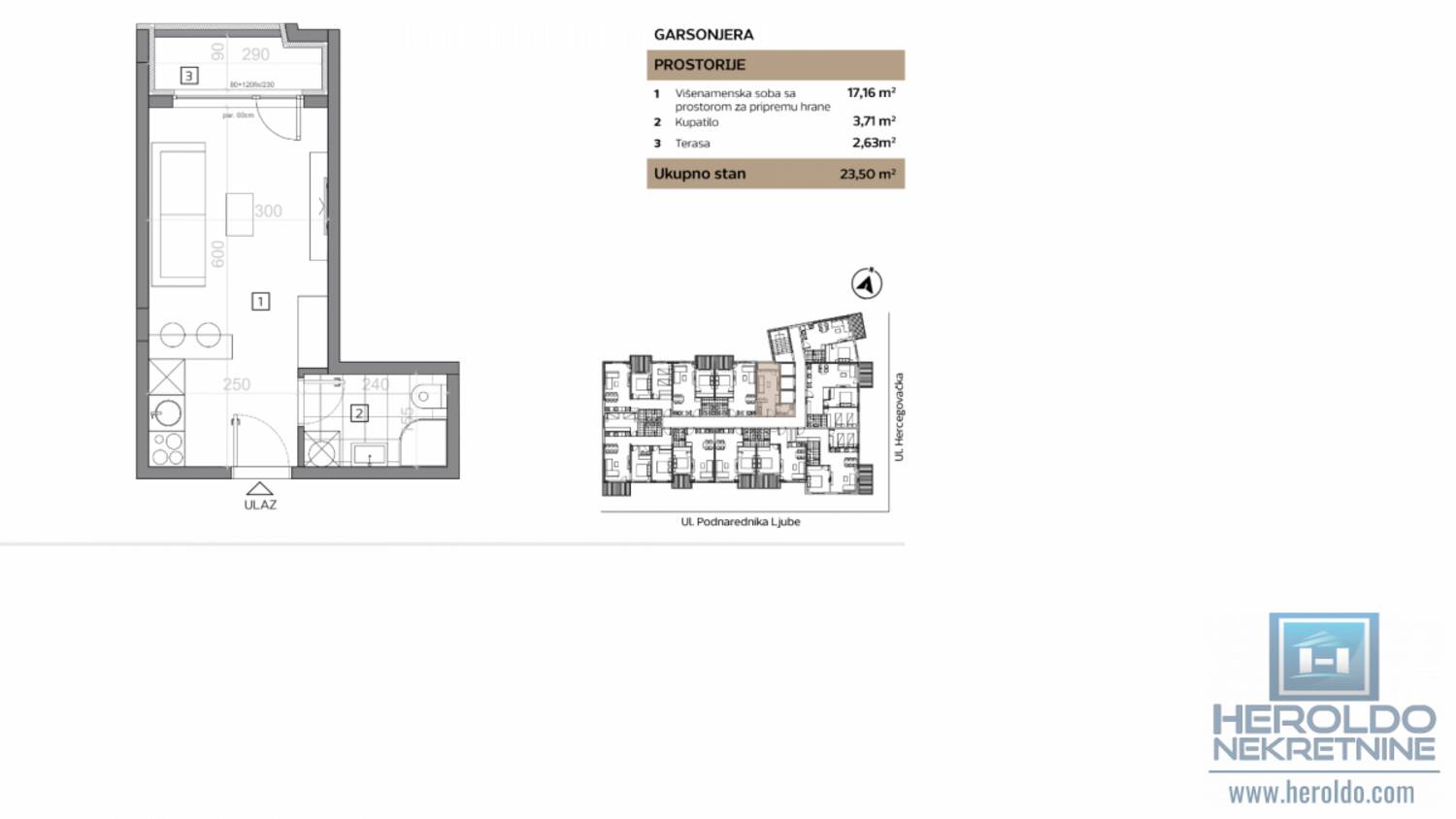
24 m²
Struktura
Garsonjera
Grejanje
Centralno
Detalji
- Tip
- Stan
- Struktura
- Garsonjera
- Cena
- 38.400€
- Površina
- 24 m² (1 600 €/m²)
- Sprat
- 3
- Ukup. spratova
- 7
- Grejanje
- Centralno
- Lift
- Da
- Nameštenost
- Prazan
- Ažuriran
- 19.10.2025
- ID
- 1454035
Opis
Stanovi u izgradnji na par minuta od gradskog jezgra, lokacija koja u potpunosti odgovara modernom načinu života.
Veoma blizu svih gradskih institucija, omogućava Vam da bez korišćenja vozila završavate sve Vaše obaveze.
Sa druge strane udaljeni ste samo par minuta od Vivo šoping centra, Akva parka kao i parka Đurđevo brdo. A opet. lokacija koja je pomerena od gradske gužve, što će Vam pružiti mirna i tiha poslepodneva i večeri, kad treba odmoriti od svih dnevnih napora sa kojim se svi u današnje vreme susrećemo.
Spoljni zidovi:
- Zorka Šabac, klimablok
- Stiropor 12cm
- Demit Fasada
- Dekorativni paneli u dezenu drveta
Stolarija:
Prozori Rehau Synego 80mm sa Maco okovom. Šestokomorni profili sa tri dihtung gume i tri stakla punjena argonom, sa aluminijumskim roletnama.
Kretanje kroz zgradu:
- 3 brza KLEEMANN lifta
Zvučna izolacija plafona:
- Završna podna obloga
- Cementni estrih
- Parna brana
- Kamena vuna 5cm
- AB masivna ploča 20cm, Knauf akusto vuna, Knauf
Zvučna izolacija zidova:
- Pregradni zid između dva stana: Akusto blok 20cm, Knauf akustok vuna 5cm, Knauf.
Armirani beton, 20cm, Knauf akustok vuna 5cm, Knauf
Grejanje i Hlađenje:
- svaki stan ima zasebni gasni kotao
- Nema skrivenih dodatnih troškova za grejanje
- Moguće je izabrati podno ili radijatorsko grejanje
- Svaki stan poseduje sopstveni klima uređaj
Podovi:
- TARKETT parket, opciono je moguće oblagati podove i keramikom.
064/8-312... Prikaži broj
065/8-222... Prikaži broj
035/8-222... Prikaži broj
Kontakt info

- Agencija
-
Heroldo nekretnine
- Reg. posrednika br.
- 022
- Adresa
- Jagodina, K.Milice 74
- Telefon
- 035/8222... Prikaži broj (08-19h, sub.09-15h)
Slične nekretnine

Stanovi u izgradnji -GARSONJERA
- 38.400€ 24 m2

Stanovi u izgradnji -GARSONJERA
- 38.400€ 24 m2

Stanovi u izgradnji - GARSONJERA
- 38.400€ 24 m2

Stanovi u izgradnji -GARSONJERA
- 38.400€ 24 m2

Na prodaju jednosoban stan
- 40.000€ 37 m2

Komforan, jednosoban stan u novijoj zgradi
- 44.000€ 47 m2

Jednosoban stan u širem centru Jagodine
- 44.000€ 47 m2

Jednosoban stan u centru, prizemlje
- 48.000€ 45 m2

PRODAJA – Stan sa panoramskim pogledom na grad
- 49.500€ 40 m2