Grocka, Grocka (mesto), Kolubarska, 10.0, 560m2, 430000EUR
Kolubarska , Grocka (mesto), Beograd, Srbija
430.000€
767 €/m²
Tip
Kuća
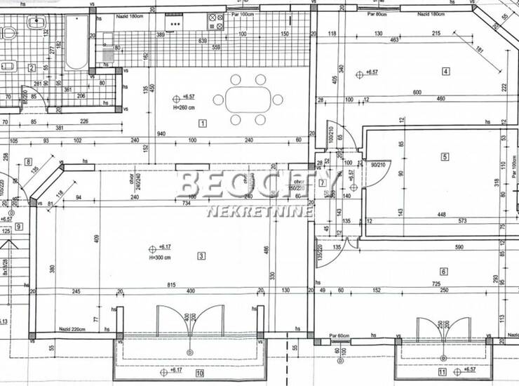
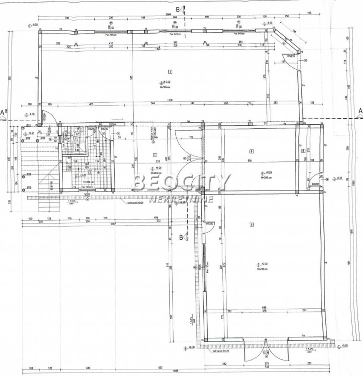
Površina
560 m²
Struktura
10
Detalji
- Tip
- Kuća
- Struktura
- 10
- Cena
- 430.000€
- Površina
- 560 m² (767 €/m²)
- Terasa
- Da
- Parking
- Da
- Uknjižen
- Da
- Ažuriran
- 09.12.2025
- ID
- 1463819
Opis
Agencijski ID: 88899, 5.1a, pr+i+pk, struja, kanalizacija, terasa, uknjizen, nov, novogradnja, garaza, parking, dvoriste/basta, moze zamena(), pogodan za pp, deljiv, cela. Mogucnost zavrsetka radova po zelji kupca. Vise informacija na: www.beocitynekretnine.rs Telefoni: 060/328-3901 060/555-9720 011/328-... Prikaži broj . Kontakt van radnog vremena: kancelarija@beocitynekretnine.rs
Kontakt info
- Agencija
-
BEOCITY NEKRETNINE
- Reg. posrednika br.
- 554
- Kontakt osoba
- Beocity Nekretnine
- Telefon 1
- 060/328-... Prikaži broj
- Telefon 2
- 011/328-... Prikaži broj
- Adresa
- Makenzijeva 22
- Beograd , Srbija
Slične nekretnine
Porodična kuća u Ritopeku, 180 m², dva nivoa i veliko dvorište
- 395.000€ 250 m2
Spratna kuća boje Sunca u Surčinu
- 353.000€ 176 m2
Kuća u blizini Sterijine u Surčinu
- 350.000€ 243 m2
Grocka - Bulevar revolucije, 341m2
- 370.000€ 341 m2
Grocka – 341kvm + 1,2ari ID#28985
- 370.000€ 341 m2
Grocka, Kaluđerica - Bujanovačka, 255m2
- 352.900€ 255 m2
GROCKA KALUDJERICA 360m2 , 5T , 350000e
- 350.000€ 360 m2
Obrenovac, Obrenovac (mesto), Zabranska, 5.5, 250m2, 323000EUR
- 323.000€ 250 m2
Kuća 286 m², 3, 6 ari, Obrenovac, Potića voće – 300 000 €
- 300.000€ 286 m2
Kuća sa placem i manjom kućom u Vojvođanskoj
- 295.000€ 318 m2
Grocka, Grocka (mesto), Smederevski put, 5.0, 260m2, 495000EUR
- 495.000€ 260 m2