Cetvorosoban stan, Novi Sad | Prodaja · 167m² · 412.000€
, Sremska kamenica - Popovica, Novi Sad, Srbija
412.000€
2 467 €/m²
Prodaja četvorosobnog penthouse stana Novi Sad – Royal Residency Popovica, 1
Tip
Stan
Površina
167 m²
Struktura
4.0
Grejanje
Centralno
Detalji
- Tip
- Stan
- Struktura
- 4.0
- Cena
- 412.000€
- Površina
- 167 m² (2 467 €/m²)
- Sprat
- 2
- Grejanje
- Centralno
- Parking
- Da
- Nameštenost
- Polunamešten
- Uknjižen
- Da
- Ažuriran
- 03.04.2026
- ID
- 1492859
Opis
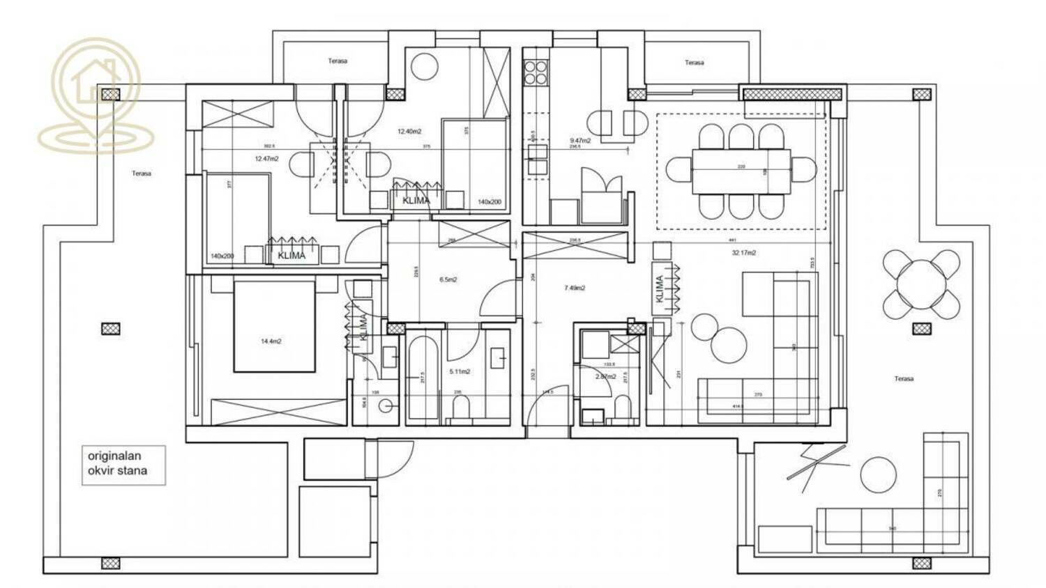
Prodaja stanova Novi Sad – u ponudi je luksuzan četvorosoban penthouse stan u Novom Sadu, u ekskluzivnom zatvorenom kompleksu Royal Residency Popovica, na izuzetnoj lokaciji, svega nekoliko minuta vožnje od centra grada.
Penthouse ima 107m2 stambenog prostora, uz dve prostrane terase ukupne površine oko 60m2 (po 30m2), sa otvorenim panoramskim pogledom na Frušku goru i Novi Sad. Stan se nalazi u završnoj fazi gradnje, a useljenje je planirano za maj 2026. godine.
Uz stan dolaze dve garaže ukupne površine 40m2, smeštene jedna do druge, sa direktnim pristupom liftu, što dodatno povećava komfor i vrednost ove nekretnine.
Raspored – četvorosoban penthouse stan
Prostran dnevni boravak sa trpezarijom i kuhinjom otvorenog tipa
Izlaz na veliku terasu idealnu za letnju trpezariju i lounge zonu
Dve komforne spavaće sobe
Glavna spavaća soba sa sopstvenom terasom i privatnom tuš kabinom
Kupatilo sa ugradnim tušem i premium keramikom
Dodatni toalet u hodniku
Predsoblje i ostava sa dovoljno prostora za odlaganje
Stan je izvođen u višem standardu u odnosu na osnovni investitorski paket – ugrađena je kvalitetna keramika višeg ranga, ugradni tuš sistemi, kvalitetni podovi i unutrašnja stolarija, što ovu nekretninu svrstava u sam vrh ponude prodaje stanova u Novom Sadu.
Royal Residency Popovica – luksuzno stanovanje
Royal Residency predstavlja zatvoreni luksuzni kompleks sa:
24h fizičkim i tehničkim obezbeđenjem
Portirnicom
Bazenima za
Kontakt info
- Agencija
-
Kompas Nekretnine
- Reg. posrednika br.
- 1596
- Kontakt osoba
- Nikola Milovanović
- Telefon 1
- 06969... Prikaži broj
- Adresa
- Kumodraška 144
- Voždovac
- Beograd , Srbija
Slične nekretnine
Porodični dom iz snova – moderan dupleks sa dvorištem i pogledom
- 442.900€ 150 m2
Sremska Kamenica - Luksuzan petosoban tripleks stan ID#1000911
- 489.000€ 145 m2
Sremska Kamenica, Popovica - Nov dvoiposoban stan ID#1001154
- 169.900€ 53 m2
Sremska Kamenica, Popovica - Nov dvoiposoban stan ID#1001171
- 156.130€ 53 m2