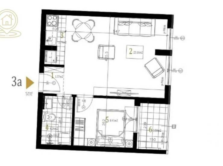
Cetvorosoban stan, Novi Sad - Petrovaradin | Prodaja · 100m² · 211.191€
, Petrovaradin, Petrovaradin, Novi Sad, Srbija
211.191€
2 111 €/m²
Prodaja stanova Novi Sad Petrovaradin
Tip
Stan
Površina
100 m²
Struktura
4.0
Grejanje
Gas
Detalji
- Tip
- Stan
- Struktura
- 4.0
- Cena
- 211.191€
- Površina
- 100 m² (2 111 €/m²)
- Sprat
- Potkrovlje
- Ukup. spratova
- 3
- Grejanje
- Gas
- Terasa
- Da
- Lift
- Da
- Garaža
- Da
- Parking
- Da
- Nameštenost
- Prazan
- Ažuriran
- 24.03.2026
- ID
- 1491590
Opis
Prodaja stanova Novi Sad – Novogradnja sa jednosobnim, dvosobnim, trosobnim i četvorosobnim stanovima
Kompas agencija
U ponudi je prodaja stanova u Novom Sadu u savremenom višeporodičnom stambenom kompleksu (Po+P+3+Pk), na odličnoj lokaciji, idealnoj za porodično stanovanje ili kao investicija za izdavanje.
Objekat se sastoji od 86 stambenih jedinica i 86 garažnih mesta, sa planiranim završetkom radova 30. aprila 2027. godine. U ponudi su jednosobni, dvosobni, trosobni i četvorosobni stanovi, površina od 29 m² do 101 m², prilagođeni različitim potrebama kupaca.
Ova novogradnja predstavlja vrhunsku ponudu u okviru prodaja stanova Novi Sad, kako za krajnje kupce, tako i za investitore.
Osnovne informacije – prodaja stanova Novi Sad (novogradnja)
Tip nekretnine: novogradnja – stambeni kompleks
Spratnost: Po + P + 3 + Pk
Broj stanova: 86 stambenih jedinica
Garaže: 86 garažnih mesta
Površine stanova: 29 m² – 101 m²
Strukture: jednosobni, dvosobni, trosobni i četvorosobni stanovi
Planirani završetak: 30.04.2027.
Namena: porodično stanovanje / investicija za izdavanje
Cene izražene sa PDV-om
Agencijska provizija je uračunata u cenu
Mogućnost kupovine na kredit
U slučaju kupovine putem kredita, cena kvadrata je viša za 100 €/m²
Tehničke karakteristike objekta
Grejanje na gas – individualno po stanu, veoma ekonomično
Šestokomorna PVC stolarija nemačkog profila – DIKIĆ
Sigurnosna vrata čelične konstrukcije,
Kontakt info
- Agencija
-
Kompas Nekretnine
- Reg. posrednika br.
- 1596
- Kontakt osoba
- Nikola Milovanović
- Telefon 1
- 06969... Prikaži broj
- Adresa
- Kumodraška 144
- Voždovac
- Beograd , Srbija
Slične nekretnine
Novi Sad, Petrovaradin, Senoina, 3.0, 74m2, 199900EUR
- 199.900€ 74 m2
Novi Sad, Petrovaradin, , 4.0, 83m2, 198000EUR
- 198.000€ 83 m2
Četvorosoban stan PETROVARADIN, 197200€
- 197.200€ 116 m2
Oglas
- 189.400€ 88 m2
Stanovi u Petrovaradinu (0.5–4.0), 26–125 m² – Agencija Kompas
- 215.565€ 105 m2
Četvorosoban stan PETROVARADIN, 215600€
- 215.600€ 98 m2
Novi Sad, Petrovaradin, Mažuranićeva , 4.0, 98m2, 215600EUR
- 215.600€ 98 m2
Prodaja stanova Novi Sad Petrovaradin –Duplex Novogradnja
- 183.000€ 83 m2