Jednoiposoban stan, Niš | Prodaja · 44m² · 84.531€
, Pantelej, Niš, Srbija
84.531€
1 921 €/m²
Jednoiposoban stan na Panteleju
Tip
Stan
Površina
44 m²
Struktura
1.5
Grejanje
Centralno
Detalji
- Tip
- Stan
- Struktura
- 1.5
- Cena
- 84.531€
- Površina
- 44 m² (1 921 €/m²)
- Sprat
- 3
- Ukup. spratova
- 4
- Grejanje
- Centralno
- Terasa
- Da
- Lift
- Da
- Parking
- Da
- Nameštenost
- Prazan
- Ažuriran
- 14.04.2026
- ID
- 1493971
Opis
Na prodaju jednoiposoban stan u kvalitetnoj novogradnji na Panteleju. Dostupan na I, II, III i IV spratu stambene zgrade sa liftom.
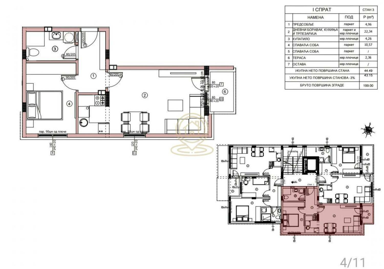
Kvadratura: 44,49m²
Sastoji se od:
-predsoblja
-dnevne sobe sa trpezarijom i kuhinjom
- spavace sobe
-kupatila
-terase
U ponudi su stanovi u kvalitetnoj novogradnji na Panteleju, u Gornjomatejevačkoj ulici.
Investitor sa dugogodišnjim iskustvom i proverenim kvalitetom gradnje, iza koga stoji realizacija više od 10 stambenih objekata na teritoriji grada.
Objekat je spratnosti Po+P+IV i projektovan je u skladu sa savremenim standardima stanovanja.
U ponudi su stanovi različitih struktura i kvadratura od 44m² do 66m² (jednoiposobni, dvoiposobni i troiposobni), sa funkcionalnim rasporedima i maksimalno iskorišćenim prostorom.
Zgrada poseduje lift, a oprema i završni radovi obuhvataju:
* podno grejanje sa kalorimetrima
* PVC stolariju sa aluminijumskim roletnama
* demit fasadu
* keramiku prve klase
* energetski pasoš
U okviru parcele predviđena su parking mesta, uz mogućnost kupovine po ceni od 6.000€.
Rok završetka radova planiran je za jun 2027. godine.
Mogucnost kupovine putem stambenog kredita uz 20% učešća.
Cena po m² u zavisnosti od dinamike plaćanja:
Keš: 44-46m² 1900e, 56-66m² 1800e
Kredit 2000e
Odlična prilika kako za porodično stanovanje, tako i za investiciju
Za vise informacija kontaktirajte nas
Agencijska provizija u skladu sa opstim uslovima poslovanja
Kompas neketnine- vas pouzdan partner u ku
Kontakt info
- Agencija
-
Kompas Nekretnine
- Reg. posrednika br.
- 1596
- Kontakt osoba
- Nikola Milovanović
- Telefon 1
- 06969... Prikaži broj
- Adresa
- Kumodraška 144
- Voždovac
- Beograd , Srbija
Slične nekretnine
Dvosoban stan na Somborskom bulevaru
- 80.500€ 46 m2
Na prodaju jednosoban stan u Durlanu
- 80.930€ 41 m2
Na prodaju jednoiposobni stan 38.5 m2
- 79.500€ 38 m2
Na prodaju dvosoban stan na Panteleju
- 78.000€ 45 m2
1.5 stan u NOVOGRADNJI, Donja Vrežina
- 78.660€ 43 m2
1.5 stan u NOVOGRADNJI, Donja Vrežina
- 84.000€ 46 m2
Novogradnja, Čalije
- 84.284€ 44 m2
Novogradnja u blizini OŠ "Mika Antić", 1.5, 45 m2
- 76.500€ 45 m2
1.5 stan u NOVOGRADNJI, Donja Vrežina
- 76.860€ 42 m2