Novogradnja sa povraćajem PDV-a
, Širi centar, Jagodina, Srbija
42.660€
1 376 €/m²
Tip
Stan
Površina
31 m²
Struktura
Garsonjera
Grejanje
Gas
Detalji
- Tip
- Stan
- Struktura
- Garsonjera
- Cena
- 42.660€
- Površina
- 31 m² (1 376 €/m²)
- Sprat
- 4
- Ukup. spratova
- 5
- Grejanje
- Gas
- Lift
- Da
- Nameštenost
- Prazan
- Ažuriran
- 08.01.2026
- ID
- 1461434
Opis
EKSKLUZIVNA NOVOGRADNJA – POVRAĆAJ PDV-a!
Tražite savršeno mesto za život ili sigurnu investiciju?
Predstavljamo vam modernu zgradu u izgradnji, na izuzetnoj lokaciji – blizu centra, a ipak uvučena od buke i gužve, idealna za mir, komfor i kvalitetan život.
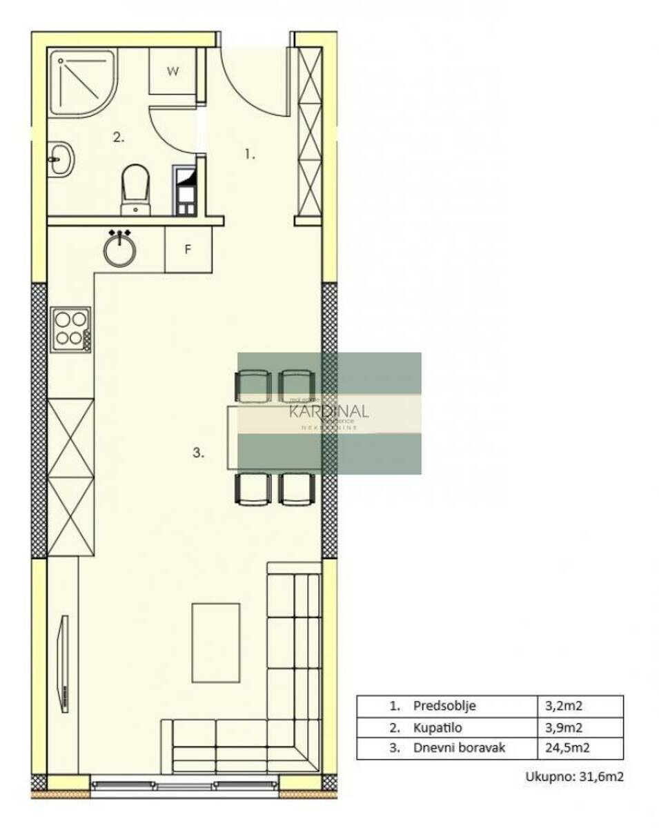
Strukturu stana čine:
-predsoblje
-kupatilo
-dnevni boravak
Ukupna površina stana je 31,6 m2.
Cena po kvadratnom metru iznosi 1.350 € sa PDV-om..
Stan se nalazi na četvrtom spratu.
GLAVNE PREDNOSTI:
✔ Povraćaj PDV-a – ogromna ušteda za kupce!
✔ Sopstveni gasni kotao – maksimalna kontrola i niska cena grejanja
✔ Savremena zgrada od 5 spratova
✔ Parking ispred zgrade – uvek siguran i dostupan prostor
✔ Vrhuska lokacija – blizina centra, prodavnica, prevoza, a ipak zaklonjeno i mirno
✔ U izgradnji, mogućnost biranja strukture i rasporeda
✔ Rok završetka: 2027. godina
Investirajte pametno – izaberite dom u kojem se luksuz, funkcionalnost i praktičnost spajaju u idealnu celinu.
Broj stanova je ograničen – rezervišite svoj na vreme!
Zakažite razgledanje u terminu kada Vama najviše odgovara!
00381 69 2 111... Prikaži broj ,
00381 69 1 222... Prikaži broj
Dostupni smo Vam non stop!
24 / 7 / 365
i subotom i nedeljom i praznicima!
Kontakt info
- Agencija
-
KARDINAL RESIDENCE DOO
- Reg. posrednika br.
- 2006
- Kontakt osoba
- Kornelija Maksimovic
- Telefon 1
- 0038169211... Prikaži broj
- Telefon 2
- 0038169122... Prikaži broj
- Adresa
- Kneginje Milice 23/4
- CENTAR
- Jagodina , Srbija
Slične nekretnine
Stanovi u izgradnji Garsonjera
- 41.600€ 26 m2
Stanovi u izgradnji Garsonjera
- 41.600€ 26 m2
Stanovi u izgradnji Garsonjera
- 41.600€ 26 m2
Stanovi u izgradnji Garsonjera
- 41.600€ 26 m2
Komforan, jednosoban stan u novijoj zgradi
- 44.000€ 47 m2
Jednosoban stan u širem centru Jagodine
- 44.000€ 47 m2
Na prodaju jednosoban stan
- 40.000€ 37 m2
Stanovi u izgradnji -GARSONJERA
- 38.400€ 24 m2
Stanovi u izgradnji -GARSONJERA
- 38.400€ 24 m2
Stanovi u izgradnji -GARSONJERA
- 38.400€ 24 m2
Stanovi u izgradnji -GARSONJERA
- 38.400€ 24 m2
Stanovi u izgradnji - GARSONJERA
- 38.400€ 24 m2