Mirijevo– moderan stan, novogradnja lux ID#1621
, Mirijevo, Zvezdara, Beograd, Srbija
100.525€
2 513 €/m²
Tip
Stan
Površina
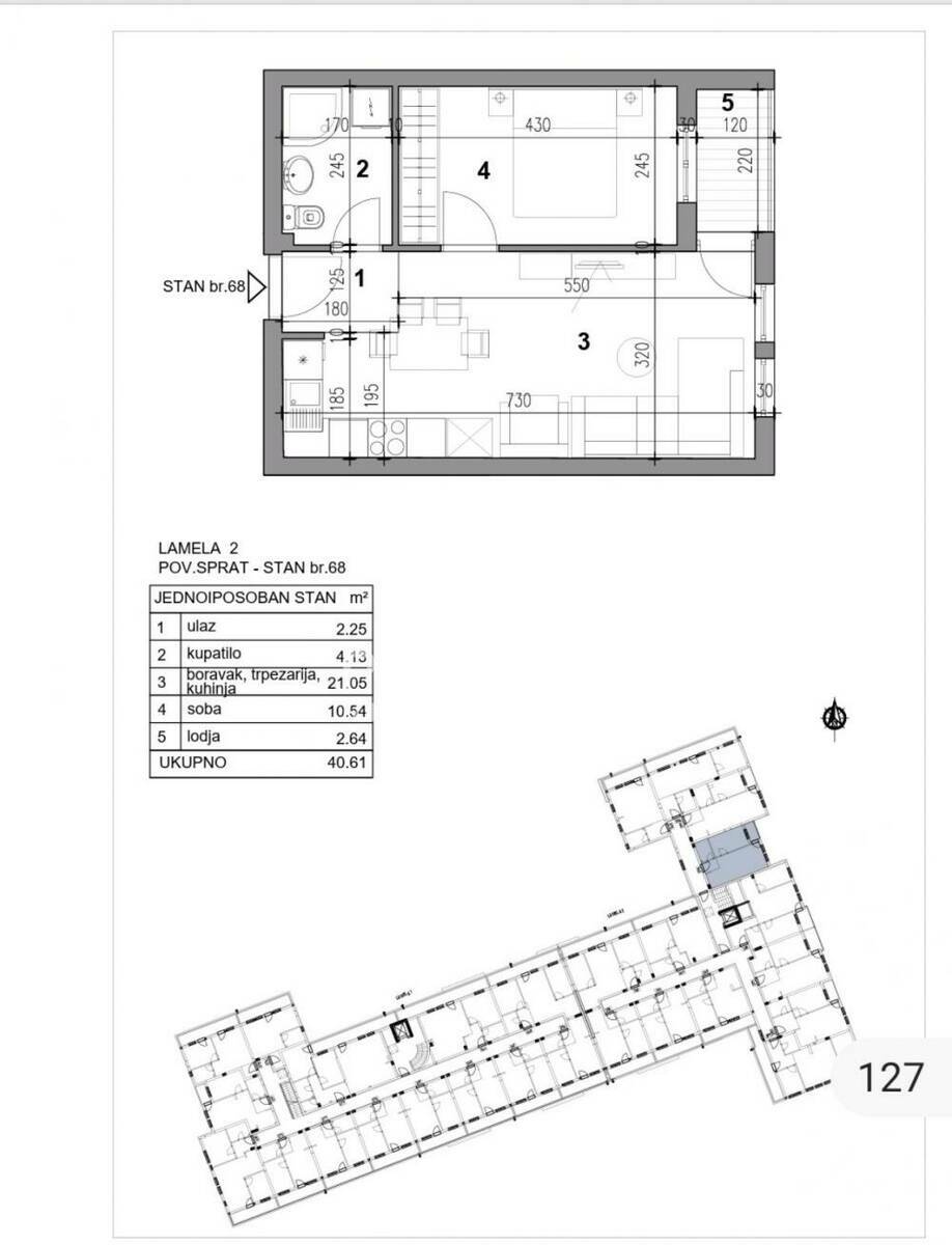
40 m²
Struktura
1.5
Grejanje
Etažno
Detalji
- Tip
- Stan
- Struktura
- 1.5
- Cena
- 100.525€
- Površina
- 40 m² (2 513 €/m²)
- Sprat
- 4
- Ukup. spratova
- 4
- Grejanje
- Etažno
- Terasa
- Da
- Lift
- Da
- Garaža
- Da
- Nameštenost
- Prazan
- Uknjižen
- Da
- Ažuriran
- 17.02.2026
- ID
- 1485529
Opis
NOVOGRADNJA MIRIJEVO – MODERAN STAN U PRIRODNOM OKRUŽENJU
Cena stana je 100525 eur sa uračunatim PDV(10%)
Predstavljamo vam jedinstvenu priliku za savremeno i komforno stanovanje u jednom od najlepših delova Mirijeva – na uzvišenju sa panoramskim pogledom na Dunav i Avalu!
Stan se sastoji iz hodnika,dnevno trpezarijskog boravka sa kuhinjom, spavaće sobe, kupatila i lođe sa prelepim pogledom.
Lokacija:
Mirna i zelena zona, idealna za porodičan život – udaljena od buke i saobraćaja, a na samo par minuta od:
gradskog prevoza,škola ,vrtića, marketa, banke, pijace i Doma zdravlja
O zgradi:
Novogradnja – rok završetka mart 2026.
Dve lamele, po četiri sprata + povučeni sprat
Dva lifta, podzemna garažai Rampa za invalide
Kvalitet gradnje:
Hrastov višeslojni parket, termo blokovi poboljšanih karakteristika, PVC stolarija sa dvoslojnim staklom i aluminijumske roletne
Stanovi su opremljeni:
Norveškim radijatorima,Walk-in tuševima,sušačima veša i kvalitetnim pločicama renomiranih brendova
Dodatne pogodnosti:
Garažna mesta sa ventilacijom i protivpožarnim sistemom koje možete kupiti po ceni od 12000 eur sa uračunatim PDV(20%).
Mogućnost ugradnje elektro-punjača (uz doplatu)
Cena:
Kupci prvog stana ostvaruju pravo na povraćaj PDV-a.
Za više informacija, prezentaciju stana i rezervacije, kontaktirajte nas već danas. . Agencijska provizija 2%
Kontakt info
- Agencija
-
PORTA NEKRETNINE
- Reg. posrednika br.
- 935
- Kontakt osoba
- Zorica Tanasković
- Telefon 1
- + 381/6973... Prikaži broj
- Telefon 2
- 011/420... Prikaži broj
- Adresa
- Tadeuša Košćuška 94
- Stari Grad
- Beograd , Srbija
Slične nekretnine
Mirijevo, stan 40 m2 , cena sa PDV, lux ID#1576
- 97.130€ 40 m2
Mirijevo– moderan stan, novogradnja lux ID#1579
- 97.100€ 37 m2
Zvezdara, Vojvode Vlahovića - Nikole Altomanovića, 42m2
- 92.400€ 42 m2
2.0, Mirijevo, Aleksandra Bugarskog, 41, 19m
- 98.856€ 41 m2