Na prodaju građevinski plac 4, 5 ari u Zvečkoj sa gotovim projektom za kuću!
, Zvečka, Obrenovac, Beograd, Srbija
20.000€
0 €/m²
Tip
Plac
Površina
0 m²
Struktura
Detalji
- Tip
- Plac
- Struktura
- Cena
- 20.000€
- Površina
- 0 m² 0 €/m²)
- Površina placa
- 4.5
- Ažuriran
- 24.02.2026
- ID
- 1486565
Opis
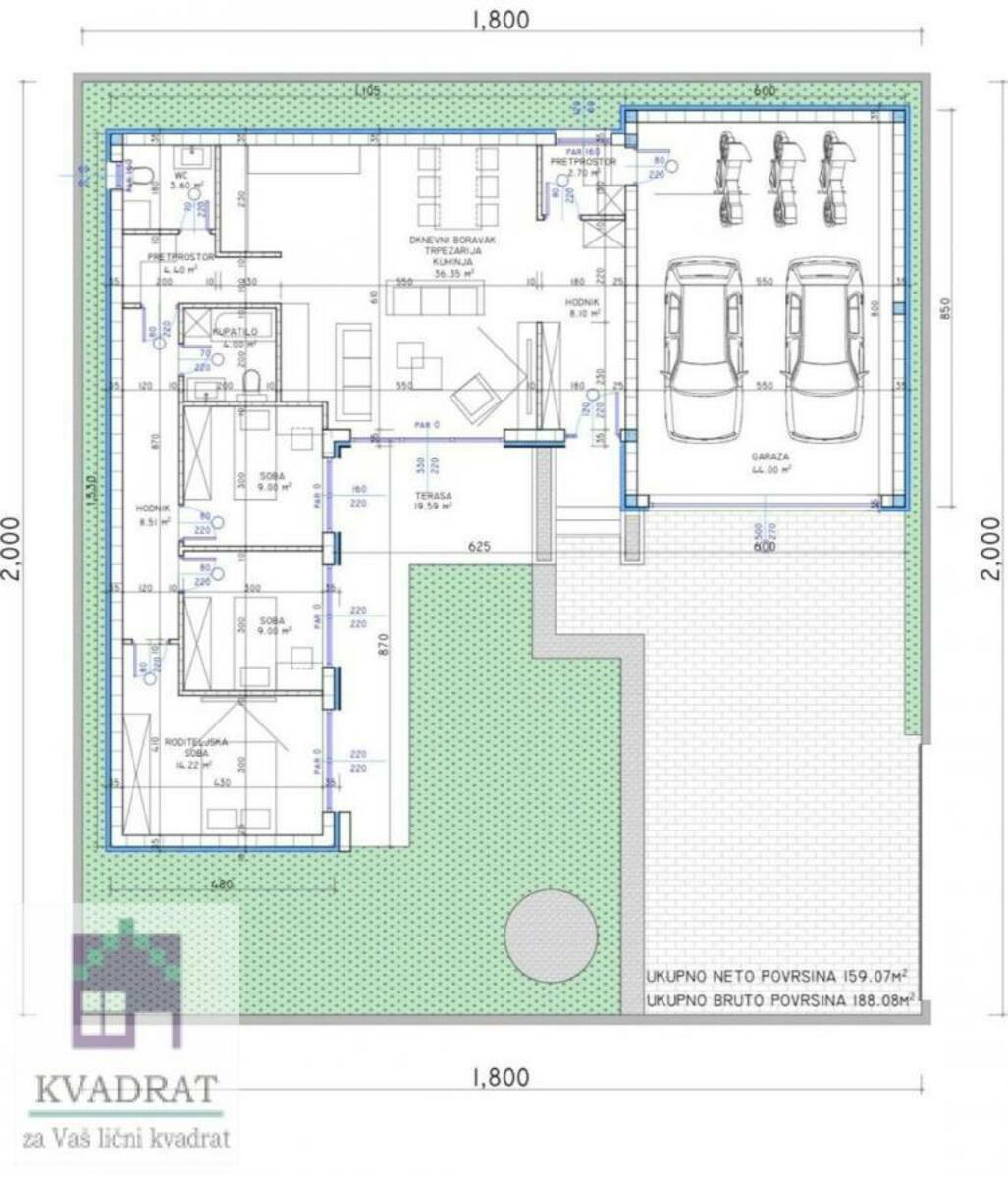
Prodaje se građevinski plac površine 4,5 ara, ravan i pravilnog oblika, idealan za porodično stanovanje ili investiciju.
Dimenzije prilaznog puta 30 x 3, dela za izgradnju 20 x 18.
✔️ Urađen projekat za modernu, prizemnu kuću (uključen u cenu)
✔️ Plac se nalazi na samo 200 m od glavnog puta Obrenovac – Šabac
- 3km od centra Obrenovca.
✔️ Blizina marketa i autobuske stanice
✔️ Mirno i zeleno okruženje, a odlična povezanost sa gradom
Mogućnost priključka na struju, vodu i gas.
Plac je idealne veličine za funkcionalno dvorište, parking i moderan objekat, uz minimalno održavanje. Projekat je pažljivo osmišljen tako da maksimalno iskoristi prostor i obezbedi komforan porodični život.
Površina placa: 4,5 ara
Dokumentacija: uredna
Projekat za kuću: gotov i spreman za realizaciju
Za više informacija i zakazivanje razgledanja – pozvati 060 153 0... Prikaži broj
Agencijska provizija 2% (min. 600 €)
Ozbiljnost, predanost poslu, kao i visok stepen profesionalizma ističu agenciju Kvadrat na tržištu nekretnina kao veoma sigurnog i pouzdanog partnera svakoj porodici, pojedincu ili preduzeću koje se opredeli da prodaje, kupuje ili iznajmi nekretninu.
Prepustite brigu pronalaženja željene nekretnine našem iskusnom timu licenciranih agenata, uz obezbeđenu pravnu sigurnost.
Kontakt info
- Agencija
-
Agencija Kvadrat Obrenovac
- Reg. posrednika br.
- 482
- Kontakt osoba
- Maja Stević
- Telefon 1
- + 381(0)69 141 9... Prikaži broj
- Adresa
- Vojvode Mišića br. 192 – I sprat
- Obrenovac , Srbija
Slične nekretnine
Plac 10 ari, Obrenovac, Mala Moštanica – 20 000 €
- 20.000€ 0 m2
Građevinski plac 35 ari, Obrenovac, Skela - 18 000 €
- 18.000€ 0 m2
Plac 19 ari, Mislođin, Obrenovac - 19 000€
- 19.000€ 0 m2
Plac 10 ari, Barič, Obrenovac – 19.500€
- 19.500€ 0 m2
Plac 41 ar, Mala Moštanica, Obrenovac - 20.000€
- 20.000€ 0 m2
Oglas
- 20.500€ 0 m2
Plac 23 ara, Obrenovac, Barič – 19 500 €
- 19.500€ 0 m2
Građevinski plac 33 ara, Obrenovac, Barič– 16 500 €
- 16.500€ 0 m2
Plac 12 ari, Obrenovac, Draževac - 18.000€
- 18.000€ 0 m2