Čukarica, Žarkovo, Jovana Dučića, 2.0, 50m2, 134750EUR
Jovana Dučića , Žarkovo, Beograd, Srbija
134.750€
2 695 €/m²
Tip
Stan
Površina
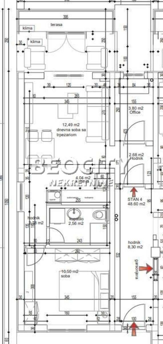
50 m²
Struktura
2
Grejanje
Gas
Detalji
- Tip
- Stan
- Struktura
- 2
- Cena
- 134.750€
- Površina
- 50 m² (2 695 €/m²)
- Ukup. spratova
- 3
- Grejanje
- Gas
- Terasa
- Da
- Parking
- Da
- Uknjižen
- Da
- Ažuriran
- 10.12.2025
- ID
- 1464305
Opis
Agencijski ID: 114409, VPR/III, klima, telefon, terasa, uknjizen, novogradnja, fasada nova, parking, dvoriste/basta, podrum, ostava, pogodan za pp, stambena zgrada. Basta 30m2, parking mesto 10000e
Porodicni objekat visokog kvaliteta, izgradjen sa najkvalitetnijim materijalima. Stambeni prostor je opremljen termoizolacijom (demit) sa elementima ventilacije, sto osigurava ugodnu klimu tokom cele godine. Vrsena rekonstrukcija porodicne kuce - tri potpuno novouradjena stana u sklopu nje u prodaji. Menjan parket, sanitarije, sredjena stolarija, inverter sistem. Radovi privedeni kraju. Vise informacija na: www.beocitynekretnine.rs Agencijska provizija 2%. Telefoni: 060/555-3901 011/319-... Prikaži broj . Kontakt van radnog vremena: kancelarija@beocitynekretnine.rs
Kontakt info
- Agencija
-
BEOCITY NEKRETNINE
- Reg. posrednika br.
- 554
- Kontakt osoba
- Beocity Nekretnine
- Telefon 1
- 060/328-... Prikaži broj
- Telefon 2
- 011/328-... Prikaži broj
- Adresa
- Makenzijeva 22
- Beograd , Srbija
Slične nekretnine
Nova godina-Nov stan u srcu Žarkova, stan 56m2
- 129.978€ 56 m2
Čukarica, Cerak, Prištinska, 3.0, 75m2, 149900EUR
- 149.900€ 75 m2
STAN CUKARICA ŽARKOVO 43m2 , T , 105000e
- 105.000€ 43 m2
Nova godina-Nov stan u srcu Žarkova, stan 71m2
- 165.252€ 71 m2
Čukarica, Žarkovo, Šavnička, 2.5, 59m2, 103000 EUR
- 103.000€ 59 m2
Čukarica, Bele vode, Primućura Žarka, 4.0, 94m2, 101000EUR
- 101.000€ 94 m2
STAN CUKARICA ŽARKOVO 138m2 , T , 185000e
- 185.000€ 138 m2
STAN CUKARICA ŽARKOVO 74m2 , T , 190000e
- 190.000€ 74 m2
Nova godina-Nov stan u srcu Žarkova, stan 34m2
- 79.218€ 34 m2