Trosoban stan, Novi Sad | Prodaja · 78m² · 215.723€
, Telep, Novi Sad, Srbija
215.723€
2 765 €/m²
Prodaja trosobnih stanova Telep – kvalitetna gradnja, 63–77m²
Tip
Stan
Površina
78 m²
Struktura
3.0
Grejanje
Gas
Detalji
- Tip
- Stan
- Struktura
- 3.0
- Cena
- 215.723€
- Površina
- 78 m² (2 765 €/m²)
- Sprat
- 2
- Ukup. spratova
- 2
- Grejanje
- Gas
- Terasa
- Da
- Garaža
- Da
- Parking
- Da
- Nameštenost
- Prazan
- Ažuriran
- 19.03.2026
- ID
- 1491104
Opis
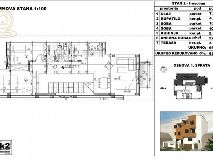
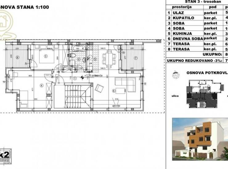
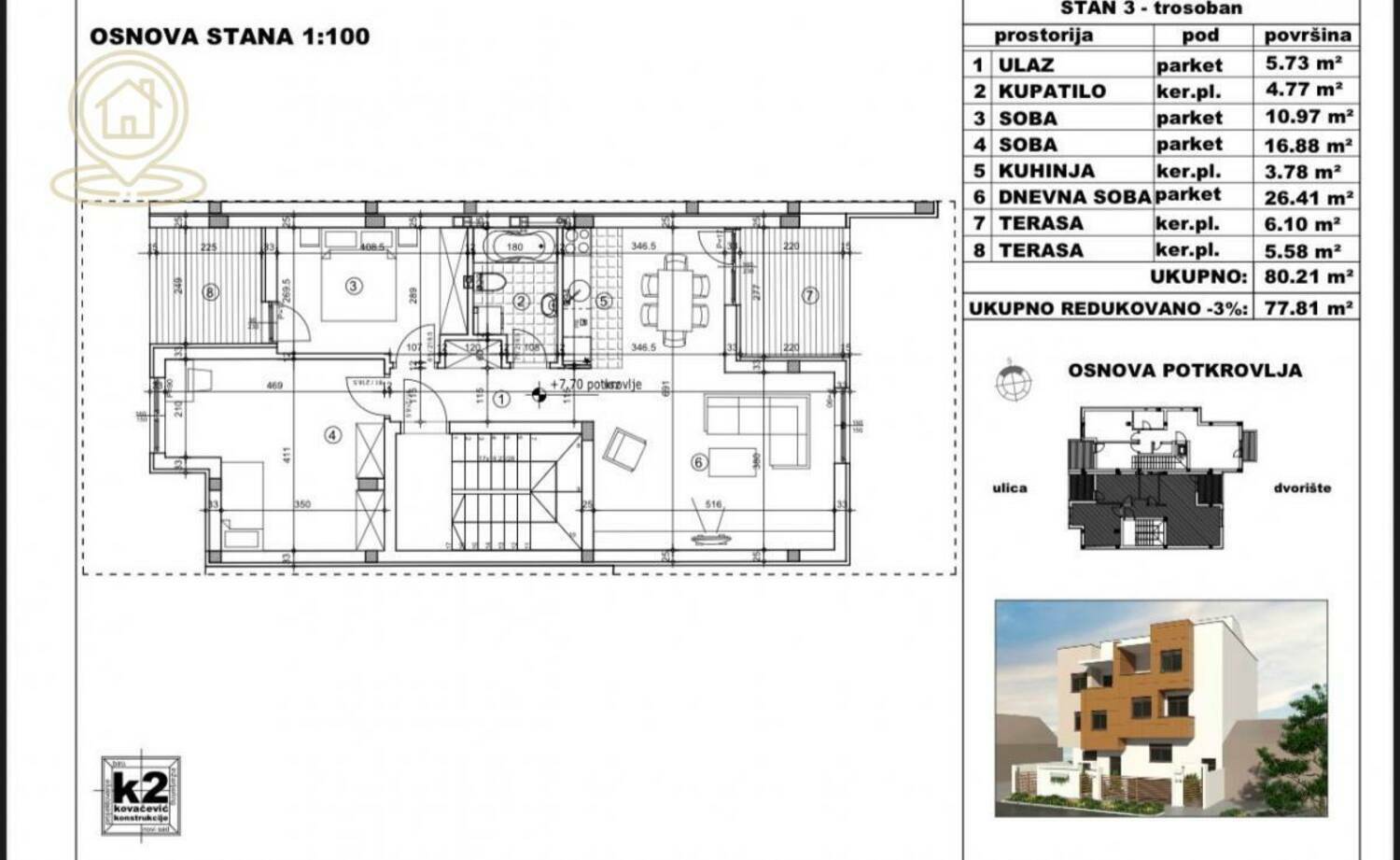
Prodaja trosobnih stanova Telep – kvalitetna gradnja, 63–77m², prizemlje, sprat i potkrovlje
Na prodaju trosobni stanovi na Telepu, površine od 63 do 77 kvadrata, u modernoj zgradi vrhunske gradnje. Stanovi su dostupni u prizemlju, na prvom spratu i u potkrovlju, sa pažljivo osmišljenim rasporedom prostorija i odličnom izolacijom.
✅ Lokacija: miran deo Telepa, u blizini škole, vrtića, prodavnica i autobuskih linija
✅ Struktura: trosobni stanovi od 63m² do 77m²
✅ Spratnost: prizemlje, prvi sprat i potkrovlje
✅ Gradnja: odličan kvalitet, savremeni materijali, energetski efikasni prozori i fasada
✅ Uskoro useljivo
Ovi stanovi na Telepu idealni su za porodično stanovanje ili investiciju.
Agencijska provizija u skladu sa opštim uslovima poslovanja.
Kompas nekretnine – Vaš pouzdan partner u kupovini i prodaji nekretnina.
Kontakt info
- Agencija
-
Kompas Nekretnine
- Reg. posrednika br.
- 1596
- Kontakt osoba
- Nikola Milovanović
- Telefon 1
- 06969... Prikaži broj
- Adresa
- Kumodraška 144
- Voždovac
- Beograd , Srbija
Slične nekretnine
Novi Sad, Telep, Heroja Pinkija, 4.0, 77m2, 204000EUR
- 204.000€ 77 m2
Novi Sad, Telep, Sime Matavulja, 3.0, 83m2, 206000EUR
- 206.000€ 83 m2
Novi Sad, Telep, , 3.0, 70m2, 210000EUR
- 210.000€ 70 m2
Četvorosoban stan NOVI SAD, 196185€
- 196.185€ 87 m2
Četvorosoban stan NOVI SAD, 214774€
- 214.774€ 93 m2
Novi Sad, Telep, , 4.0, 93m2, 214774EUR
- 214.774€ 93 m2
Četvorosoban stan NOVI SAD, 193000€
- 193.000€ 82 m2