Prodaja - porodična spratna kuća na Budžinom brdu
, Budžino brdo, Jagodina, Srbija
120.000€
214 €/m²
Tip
Kuća
Površina
560 m²
Struktura
4.0
Detalji
- Tip
- Kuća
- Struktura
- 4.0
- Cena
- 120.000€
- Površina
- 560 m² (214 €/m²)
- Površina placa
- 6.58
- Sprat
- Ukup. spratova
- 3
- Terasa
- Da
- Garaža
- Da
- Ažuriran
- 20.02.2026
- ID
- 946369
Opis
*** Na fotografijama je prikazano idejno rešenje porodično stambene zgrade ***
* CENA 120.000 € važi samo za kupovinu objekta u zatečenom stanju - stavljen pod krov i završeni su svi grubi građevinski radovi.
* Postoji mogućnost da se objekat završi po planiranom projektu (prikazan na renderima) od strane pouzdanog investitora, i to po principu ključ u ruke uz korekciju cene, u dogovoru sa investitorom. Projekat "ključ u ruke" je savršen izbor za izgradnju kuće prema Vašim zahtevima, bez dodatne brige za izgradnju i organizaciju majstora.
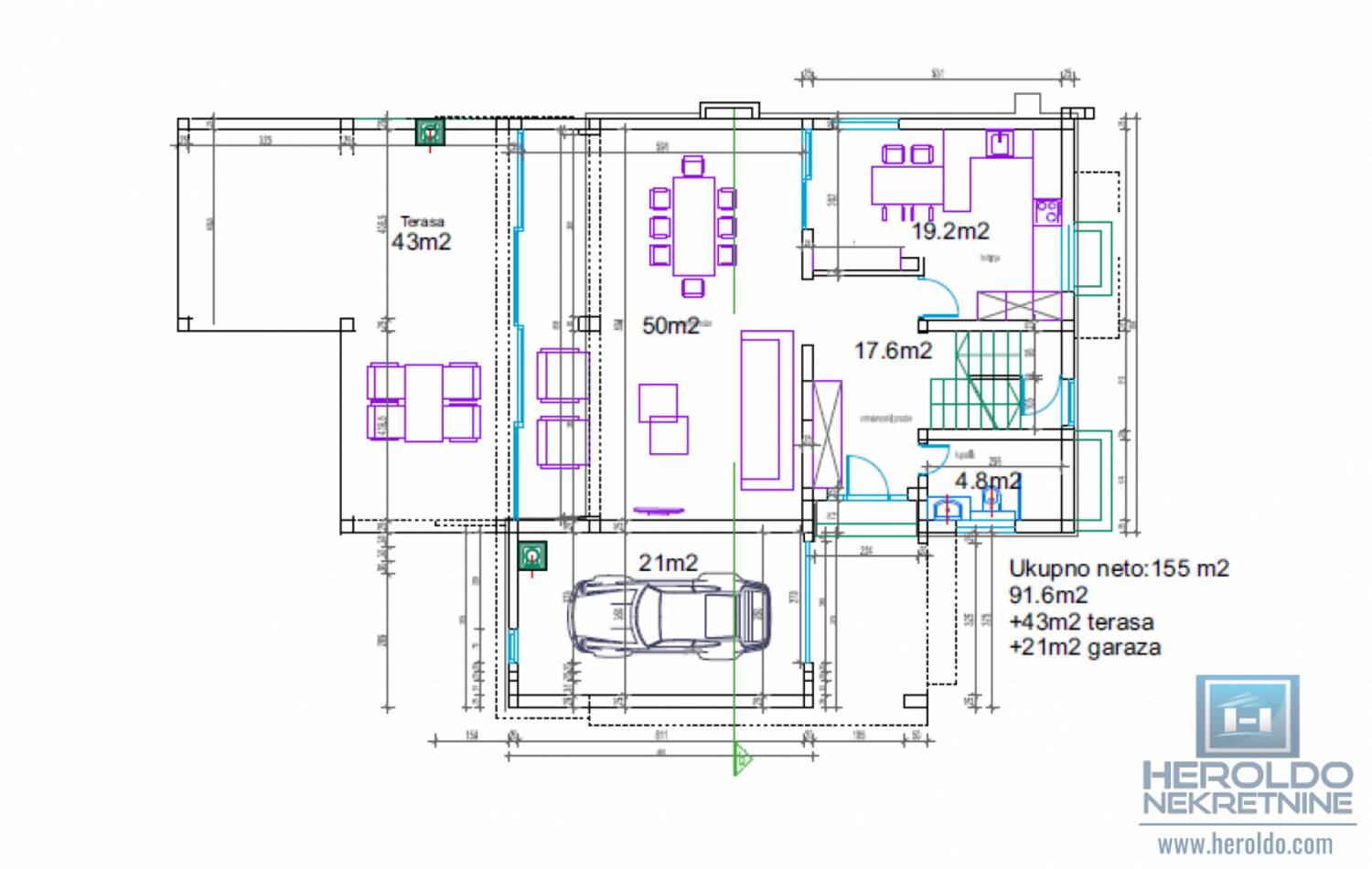
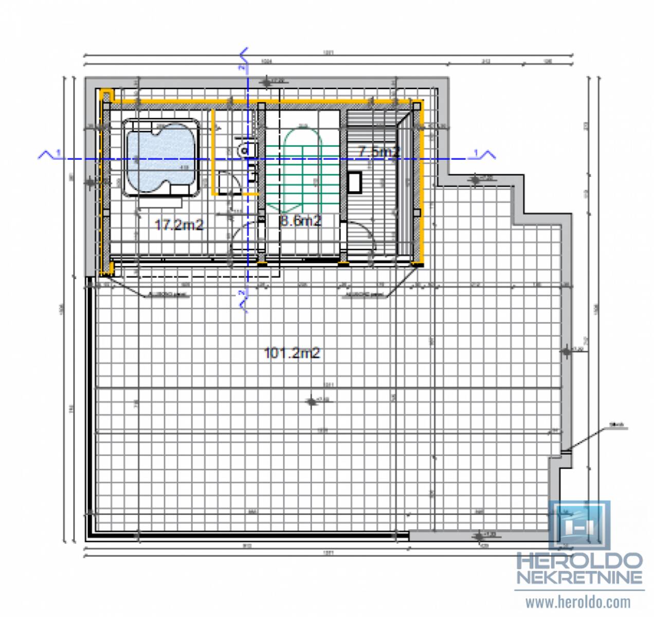
- Neto površina objekta: 560.5m2
- Četirir etaže: podrum, prizemlje, sprat i povučeni sprat
- U podrumskom delu površine 150m2 planirana je prostorija za rekreaciju površine 82.6m2, pomoćna kuhinja, kotlarnica, garderober i WC.
- Prizemlje korisne površine 155m2 poseduje prostrani dnevni boravak 50m2, kuhinju sa trpezarijom 19.2m2 i kupatilo. Na istoj etaži nalazi se garaža u sklopu objekta površine 21m2 i komforna terasa za uživanje sa porodicom i prijateljima površine 43m2.
- Na spratu stambenog obejkta planirano je uređenje više spavaćih soba, kotlarnice i dva kupatila.
Uselite se u novi dom izgrađen po najsavremenijim standardima na najboljoj lokaciji za miran porodični život u Jagodini. Naša iskrena preporuka!
Kontakt info
- Agencija
-
Heroldo nekretnine
- Reg. posrednika br.
- 022
- Adresa
- Jagodina, K.Milice 74
- Telefon
- 035/8222... Prikaži broj (08-19h, sub.09-15h)
Slične nekretnine
Dve kuće na lepoj lokaciji
- 115.000€ 192 m2
Komforna kuća na Budžinom brdu
- 118.000€ 353 m2
Komforna kuća za manje od 400e/m2 sa tri garaže
- 118.000€ 298 m2
Povoljna šestosobna kuća na Budžinom brdu
- 105.000€ 300 m2
Odlična kuća na periferiji grada
- 90.000€ 80 m2
Novoozidani objekat kuća tri 3 etaže u Đurđevom brdu
- 60.000€ 230 m2
Prizemna kuća u Jagodini, Đurđevo brdo
- 70.000€ 120 m2
Legalizovana kuća na Budžinom brdu
- 130.000€ 250 m2
Prelepa nova kuća na Budžinom brdu
- 160.000€ 270 m2
Porodična kuća sa prostranim placem i odličnim položajem
- 160.000€ 218 m2
ŽIVOT IZ BAJKE I INVESTICIJA IZ SNOVA – SVE U JEDNOM!
- 385.000€ 220 m2
Lux sređena kuća, useljiva
- 319.000€ 489 m2