12km od Bgd i 3km od Pančeva - Distributivni/proizvodni centar 522m2+32ara ID#
Pančevački Put , Pančevački put, Palilula, Beograd, Srbija
1.700.000€
3 256 €/m²
Tip
Poslovni prostor / Lokal
Površina
522 m²
Struktura
10.0
Grejanje
Centralno
Detalji
- Tip
- Poslovni prostor / Lokal
- Struktura
- 10.0
- Cena
- 1.700.000€
- Površina
- 522 m² (3 256 €/m²)
- Sprat
- Prizemlje
- Ukup. spratova
- 3
- Grejanje
- Centralno
- Nameštenost
- Prazan
- Ažuriran
- 12.02.2026
- ID
- 1460137
Opis
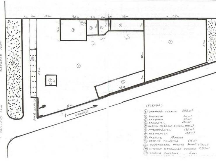
MAGNAT 064.5.800.900 - EKSKLUZIVNO prodaje - u ulici Pančevački put (12km od Beograda), kod Enmona, na Opštini Palilula, MAGNAT prodaje Distributivni centar za razne namene, koji se sastoji od 32 ara zemljišta i poslovne zgrade površine 522 m2, u tri nivoa, sa CG;
Prizemlje: 6 kancelarija, čajna kuhinja, veliki sanitarni čvor, hodnik;
I sprat: 5 kancelarija, čajna kuhinja, 3 WCa, prijemni hol;
Potkrovlje: 3 velike kancelarije.
U sklopu centra nalazi se i:
- magacinska hala, kvalitetna gradnja, u dva nivoa, visina 6 - 10 m, površine preko 1.000 m2, mogućnost ulaska šlepera i kamionski prilaz;
- radionica 154m2 + farbara 35m2,
- magacin 54m2,
- nadstrešnica površine preko 150 m2;
- portirnica 20 m2,
- plato za teške terete preko 2.150 m2, za lako manevrisanje vozilima;
- parking za 10 vozila,
- zelena površina od 6,75 + 5 ari.
Sve ograđeno črvstom ogradom, velikim kliznim vratima za ulazak velikih kamiona. Distributivni centar je opremljen svim neophodnim za kvalitetno funkcionisanje: voda, struja, grejanje, telefonske linije, teretna vaga i dr. U blizini je stanica bus linije 108 (početna stanica je na okretnici kod Bogoslovije).
MAGNAT preporučuje ovaj poslovni objekat firmama koje se bave distribucijom ili proizvodnjom, takođe može da se pretvori u manji tržni centar sa restoranom i prenoćištem. Useljiv je ODMAH. UKNJIŽEN - Mogu kreditni kupci! RAZMISLITE: Odlična prilika za investiciju
Kontakt info
- Agencija
-
MAGNAT Kupac
- Reg. posrednika br.
- 178
- Kontakt osoba
- Magnat Kupac
- Telefon 1
- 0645.800.900
- Adresa
- Svetozara Markovića 46
- Slavija
- Beograd , Srbija
Slične nekretnine
PRODAJA, ETNO RESTORAN ZLATAR
- 1.200.000€ 310 m2
Palilula, Palilulska pijaca - 27. marta, 120m2 - RETKO U PONUDI!
- 880.000€ 120 m2
Odličan poslovni prostor u Ruzveltovoj ulici ID#1497
- 700.000€ 247 m2
Palilula, Botanička bašta - Vojvode Dobrnjca, 99m2
- 489.000€ 99 m2
Palilula, Višnjica - Maršala Tita, 243m2
- 460.000€ 243 m2
Palilula, Palilulska pijaca - 27. marta, 105m2
- 430.500€ 105 m2
Palilula, Borča - Ivana Milutinovića, 126m2
- 425.000€ 126 m2
Palilula, Palilulska pijaca - 27. marta, 90m2
- 280.000€ 90 m2
Centar - Stanoja Glavaša 63kvm
- 272.000€ 63 m2
+PALILULA VN 2116
- 200.000€ 127 m2
Palilula, Višnjička banja - Stojana Stoleta Aranđelovića, 180m2
- 170.000€ 180 m2
Lokal, Bulevar despota Stefana, 23m²
- 85.000€ 23 m2