Trosoban stan, Pančevo | Prodaja · 66m² · 102.380€
Uroša Predića , Margita, Pančevo, Srbija
102.380€
1 551 €/m²
Bez provizije, luxuzni stanovi Pančevo
Tip
Stan
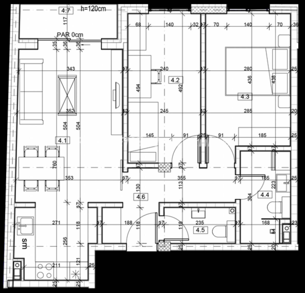
Površina
66 m²
Struktura
3.0
Grejanje
Etažno
Detalji
- Tip
- Stan
- Struktura
- 3.0
- Cena
- 102.380€
- Površina
- 66 m² (1 551 €/m²)
- Sprat
- 1
- Ukup. spratova
- 4
- Grejanje
- Etažno
- Terasa
- Da
- Lift
- Da
- Garaža
- Da
- Uknjižen
- Da
- Ažuriran
- 24.02.2026
- ID
- 1362704
Opis
Bez plaćanja agencijske provizije za kupca.
Pančevo, Margita, Uroša Predića, 3.0, 66,05m2, I/4, lift, EG na struju. Luxuzan objekat u izgradnji.
Uredna dokumentacija – građevinska dozvola i prijava radova. Rok završetka radova 31.12.2026.godine.
Odlična loakcija nedaleko od centra grada, 250m do gradske plaže, blizina škola, obdaništa i ostale
infrastrukture.
Kvalitet gradnje: zidovi od termoblokova najviših izolacijskih svojstva + fasadna izolacija. Pregradni zidovi
od opeke. Oprema: PVC stolarija sa troslojnim niskoemisionim staklom i PVC roletnama, podne obloge:
tarket i keramika granitna I klase. Sigurnosna ulazna vrata, optički priključak.
Kupatilska oprema: uvozna granitna keramika, tuš paravani od kaljenog stakla, linijski slivnici i staklene
tuš kabine – kaljeno staklo, ugradni vodokotlići.
Mogućnost garažnih mesta.
Mogućnost kupovine iz kredita.
Prikazana cena je bez PDV-a koji iznosi 10%. Mogućnost povraćaja PDV-a za kupca prvog stana.
Plaćanje fazno, po fazama gradnje.
Kontakt info
- Agencija
-
PRUDENS Nekretnine
- Reg. posrednika br.
- 1065
- Kontakt osoba
- Arsen Arsenović
- Telefon 1
- 011749... Prikaži broj
- Telefon 2
- 064113... Prikaži broj
- Adresa
- Braće Puhalović 37
- Surčin
- Beograd , Srbija
Slične nekretnine
Bez provizije, luxuzni stanovi Pančevo
- 105.680€ 68 m2