Vračar, Slavija - Njegoševa, 200m2
Njegoševa , Slavija, Vračar, Beograd, Srbija
6.000€ /mesečno
30 €/m²
Tip
Poslovni prostor / Lokal
Površina
200 m²
Struktura
Grejanje
Centralno
Detalji
- Tip
- Poslovni prostor / Lokal
- Struktura
- Cena
- 6.000€ /mesečno
- Površina
- 200 m² (30 €/m²)
- Sprat
- Prizemlje
- Grejanje
- Centralno
- Ažuriran
- 23.01.2026
- ID
- 1476688
Opis
Vračar, Slavija - Njegoševa
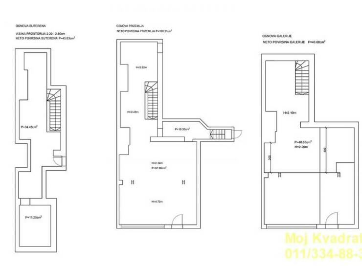
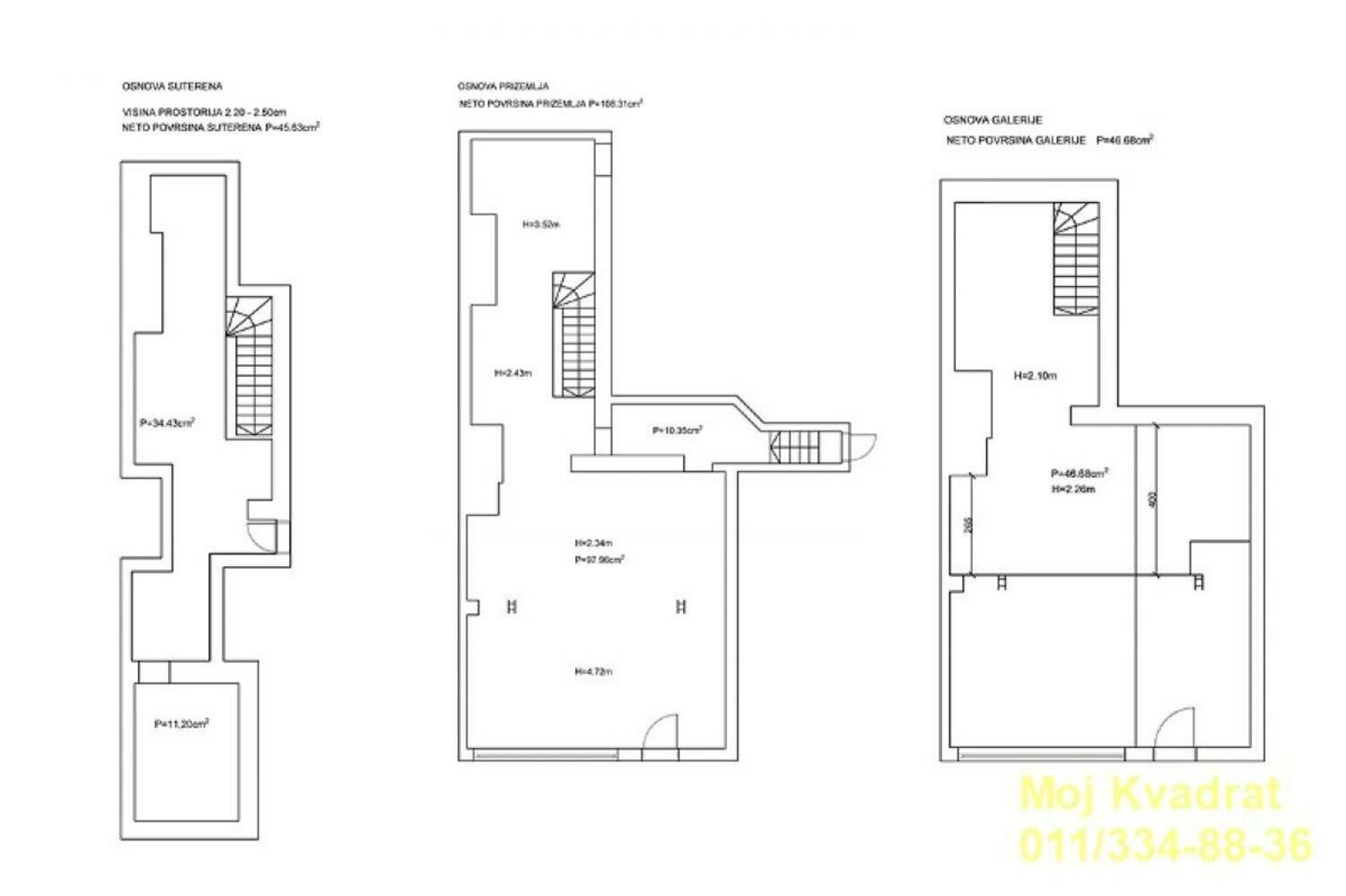
lokal, 200m2, prizemlje + galerija, CG
Izdaje se lokal u Njegoševoj ulici sa pogledom na park. Lokal je u sivoj fazi u ima tri nivoa. Visina plafona između prizemlja i galerije je 4,8m.
Lokal je vanrednog potencijala za ugostiteljsku delatnost, uzimajući samu poziciju u izrazito prometnoj zoni, pogled na park i mogućnost otvaranja bašte, uz saglasnost Opštine Vračar.
Zakupac ima mogućnost da uređuje lokal po sopstvenom nahođenju, na način kako bi se sva uložena sredstva sukcesivno odbijala od kirije.
Agencijska provizija u skladu sa Opštim uslovima poslovanja.
Agent: Svetlana Todorov 066/239-1... Prikaži broj licenca br.6305)
Kontakt info
- Agencija
-
MOJ KVADRAT D.O.O
- Reg. posrednika br.
- 167
- Kontakt osoba
- Moj Kvadrat
- Telefon 1
- 011/334... Prikaži broj
- Telefon 2
- 011/334... Prikaži broj
- Adresa
- Beogradska br.71
- Palilula
- Beograd , Srbija
Slične nekretnine
Vračar, Slavija - Kneginje Zorke, 362m2
- 6.000€/mesečno 362 m2
Beograd, Vračar - Odličan poslovni prostor ID#9104533
- 6.020€/mesečno 404 m2
Beograd, Vračar - Odlična poslovni prostor ID#9104002
- 7.367€/mesečno 421 m2
Izdaje se poslovni prostor 145 m² – Autokomanda | Više kancelarija | Odlič
- 2.400€/mesečno 145 m2
Vračar, Slavija, , 1.0, 180m2, 2500EUR
- 2.500€/mesečno 180 m2
VRACAR HRAM 185m2 , 2000e
- 2.000€/mesečno 185 m2
Vračar, Hram Svetog Save - Nebojšina, 185m2
- 2.000€/mesečno 185 m2
Izdavanje, Lokal, Beograd, Vračar, Južni bulevar
- 2.000€/mesečno 96 m2
Izdavanje, Poslovni prostor, Beograd, Vračar, Neimar
- 2.000€/mesečno 188 m2
Vračar, Hram Svetog Save, , 4.0, 173m2, 2200EUR
- 2.200€/mesečno 173 m2
Vračar, Pravni fakultet - Bulevar kralja Aleksandra, 40m2
- 1.900€/mesečno 40 m2
Izdaje se trosoban stan 144 m², odlična lokacija, renovirana zgrada, Beograd
- 1.800€/mesečno 144 m2